Heves megye, Hatvan


 

Ingatlan adatai

Irányár: 55 000 000 Ft
Típus: ház
Kategória: eladó
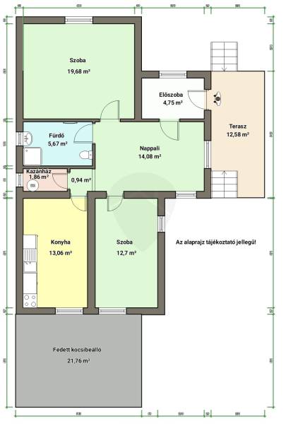
Alapterület: 75 m2
Fűtés: egyéb
Állapota: -
Szobák száma: 3
Építés éve: 1970
Szintek száma: -
Telekterület: 850 m2
Kert mérete: 850 m2
Erkély mérete: 12 m2
Felszereltség: -
Parkolás: -
Kilátás: utcai
Egyéb extrák:  
-

Részletes leírás

TELJES FELÚJÍTÁS, JÓ ÁR, GYORS BIRTOKBA ADÁS! Hatvan egyik legjobb részén eladásra kínálok egy 75 nm-es, ÖSSZKOMFORTOS, TEHERMENTES, VEGYES ÉPÍTÉSŰ családi házat. A ház egy része TUFÁBÓL, másik fele TÉGLÁBÓL épült, fűtése kondenzációs kazánnal megoldott. A 3 szobás ingatlan az utóbbi években teljes felújításon esett át, többek között:- A vízvezeték teljes cseréje megtörtént.- A gáz korszerűsítése is megvalósult, új kondenzációs kazánnal lett felszerelve.- A villanyvezeték rézre lett cserélve.- A burkolatok ugyancsak újak.- Új a tetőszerkezet új lécekkel, gerendákkal, cseréppel.- A fürdőszoba teljes átalakítása megtörtént.- A nyílászáró ablakok egy része cserélve lett.A 850 nm telek minden oldalról elkerített, jó termőfölddel rendelkezik, további beépítési lehetőség adott. Az építmény Hatvan központjában helyezkedik el a Penny közelében. Jó szomszédokkal körbevett. Bolt, buszmegálló, iskola-óvoda néhány percen belül elérhető. Az autópálya felhajtó néhány km-en belül található. Birtokba adása gyorsan kivitelezhető.

 Hirdető adatai

Hirdető neve: Ingatlanmentor powered by Rock Home
Kapcsolattartó: Tóth Sándor
Hirdető telefonszáma: +36305257240
Honlap: -