Pest megye, Szigetszentmárton


 

Ingatlan adatai

Irányár: 72 900 000 Ft
Típus: ház
Kategória: eladó
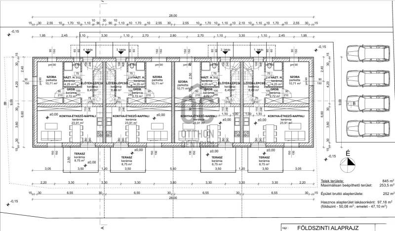
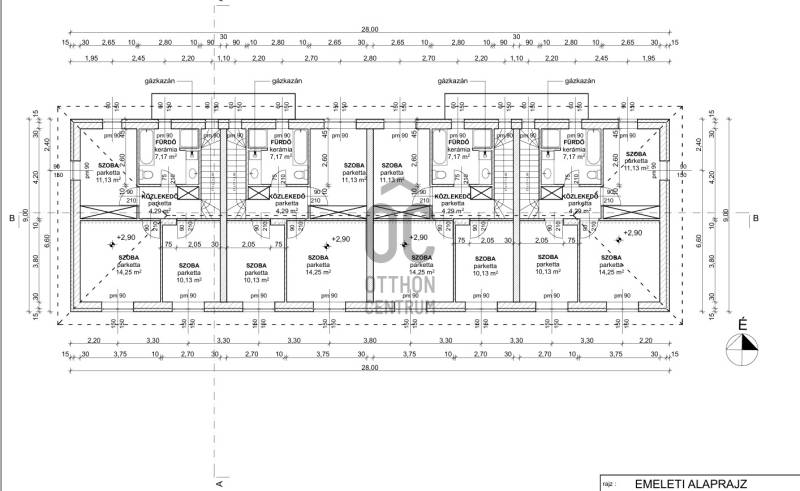
Alapterület: 97 m2
Fűtés: gáz (cirko)
Állapota: új
Szobák száma: 5
Építés éve: 2025
Szintek száma: -
Telekterület: 109 m2
Kert mérete: 109 m2
Erkély mérete: 9 m2
Felszereltség: -
Parkolás: -
Kilátás: udvari
Egyéb extrák:  
-

Részletes leírás

Szigetszentmárton szélső sorházi lakás✅️ téglaépítésű✅️ nettó 97 m2✅️ kétszintes✅️ nappali + 4 hálószoba✅️ két fürdőszoba (alsó szinten zuhanyzó + wc, felső szinten fürdőkád + wc)✅️ fűtése: gázcirkó + padlófűtés✅️ 1 db ajándék hűtő-fűtő klíma✅️ kulcsrakészen, kiburkolva✅️ saját kert: 109 m2Hitel, CSOK, otthon start igényelhetőMegbízható, helyi, magyar vállalkozó.Várható átadás: 2025 év végeProjekt bemutatásaEladó új építésű sorházi lakások Szigetszentmártonban✅️ 4 lakás ✅️ nettó 97 m2✅️ nappali + 4 hálószoba✅️ két fürdőszoba (alul zuhanyzó, felül kád)✅️ fűtése: gázcirkó + padlófűtés✅️ saját kert: 50 - 300 m2-igHitel, CSOK, otthon start igényelhetőVárható átadás: 2025 év végeTovábbi információkért kérem hívjon

 Hirdető adatai

Hirdető neve: Otthon Centrum
Kapcsolattartó: Joó Krisztina
Hirdető telefonszáma: +36 70 469 3111
Honlap: -