Somogy megye, Balatonboglár


 

Ingatlan adatai

Irányár: 59 980 000 Ft
Típus: ház
Kategória: eladó
Alapterület: 68 m2
Fűtés: gáz (cirko)
Állapota: -
Szobák száma: 4
Építés éve: 1965
Szintek száma: -
Telekterület: 818 m2
Kert mérete: 818 m2
Erkély mérete: 13 m2
Felszereltség: -
Parkolás: -
Kilátás: -
Egyéb extrák:  
-

Részletes leírás

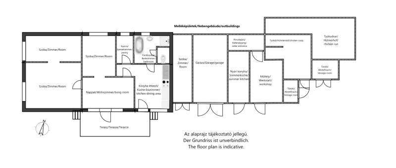
Balatonboglár családiházas övezetében kínálunk megvételre lakóingatlan besorolású családi házat, 818 nm-es telekkel.Az ingatlan ideális választás mindazoknak, akik a Balaton közelségét, a nyugodt környezetet és a saját, önellátásra alkalmas egységeket egyaránt értékelik.FŐBB JELLEMZŐK:Lakóház: 62 nm hasznos alapterület + 13 nm teraszÉpítés: 1965, tégla falazat, cserép héjazatú tetőFűtés: gázcirkó kazán radiátor hőleadóvalMelegvíz: villanybojlerTájolás: délPince: hűvös, száraz tárolóhely boroknak, befőtteknekKözművek: teljes körűen kiépítettTelek: 818 nm, körbekerített, jelenleg nem működő fúrt kúttalMelléképületek:Műhely – barkácsolásra, kisebb vállalkozásra alkalmasGarázs – biztonságos járműtárolásÖnellátásra alkalmas egységek – nyári konyha, tárolók, tyúkól és tyúkudvarEllátottság és közlekedés:Balaton: 1800 mIskola: 1000 mHáziorvos: 650 mBevásárlási lehetőség: 550 mMiért jó Balatonboglár?Balatonboglár a Balaton déli partjának egyik legkedveltebb városa – ideális állandó lakhatásra vagy nyaralónak egyaránt:Gyönyörű, sekély strandok, tökéletes családoknakBoglári borvidék, pincék, borfesztiválokKiváló közlekedés – M7 autópálya és vasút Budapestre és környékéreSzabadidős lehetőségek – kerékpárutak, vitorlás kikötő, Gömbkilátó, kulturális programokNyugodt, családbarát környezet, minden fontos szolgáltatás rövid sétatávolságraEz az ingatlan tökéletes kombinációja a Balaton közelségének, a vidéki nyugalomnak és a praktikus, melléképületekkel kiegészített életstílusnak.Amennyiben kérdése merülne fel az ingatlannal kapcsolatban vagy szeretné azt megtekinteni, kérem keressen amegadott elérhetőségek egyikén!#Balatonboglár #eladóház #Balaton #családiház #nyaraló #ingatlan #melléképület #nyárikonyha #műhely #önellátás #nyugodtélet #otthonabalatonnál

 Hirdető adatai

Hirdető neve: Otthon Centrum
Kapcsolattartó: Csizmadia-Schveiger Eszter
Hirdető telefonszáma: +36 70 388 6291
Honlap: -