Budapest, III.kerület


 

Ingatlan adatai

Irányár: 419 000 000 Ft
Típus: lakás (újépítésű)
Kategória: eladó
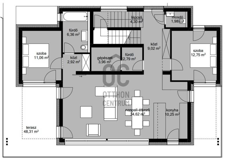
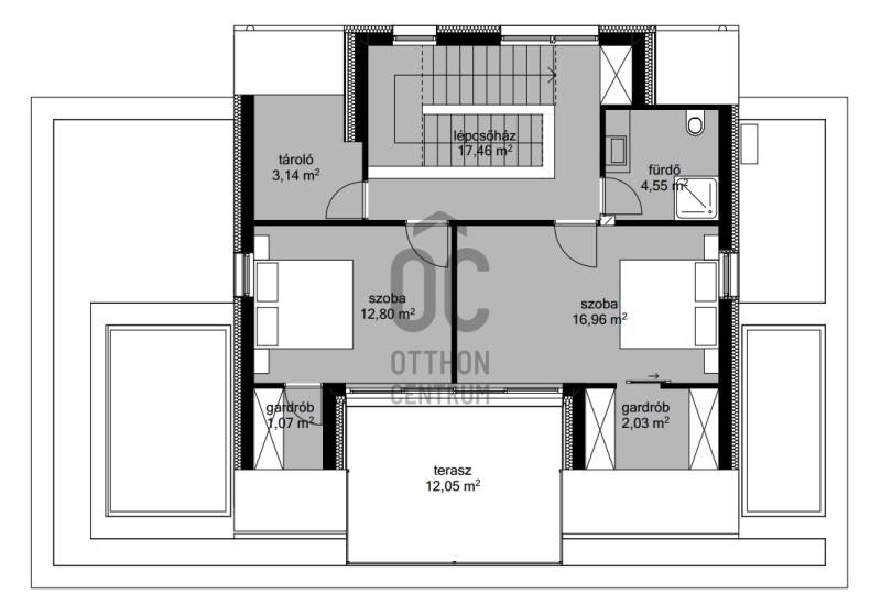
Alapterület: 158 m2
Fűtés: -
Állapota: új
Szobák száma: 5
Építés éve: 2025
Szintek száma: -
Telekterület: -
Kert mérete: -
Erkély mérete: 60 m2
Felszereltség: -
Parkolás: -
Kilátás: utcai
Egyéb extrák:  
-

Részletes leírás

Projekt bemutatásaKortárs építészet, családbarát környezetben, azonnal költözhetően. Üdv itthon! RÖVID ÖSSZEFOGLALÓA III. kerület Táborhegyhez tartozó, zöldövezeti részén, egy eldugott, forgalomtól mentes mellékutcában épült meg az ÉR Garden Homes.A projektben két modern, letisztult vonalvezetésű épület kapott helyet, összesen négy tágas, családi otthonnal.A házakat önálló hőszivattyús fűtés- és hűtésrendszer, padló- és mennyezeti hőleadás, valamint Loxone épületautomatizálás teszi korszerűvé.A kertek automata öntözőrendszerrel és robotfűnyíróval felszereltek, a teraszok télen-nyáron használhatók, a belső terek pedig minőségi beépített bútorokkal és gépesített konyhával készültek.A projekt elkészült, így az új tulajdonosokat valóban csak a beköltözés öröme várja. LOKÁCIÓAz ÉR Garden Homes a III. kerületben, Táborhegy és Testvérhegy határán, az Ér utcában található – egy forgalomtól mentes, nyugodt mellékutcában, ahol a kertvárosi hangulat és a városi infrastruktúra ideális arányban van jelen.Közlekedés és elérhetőségAz ingatlan autóval és tömegközlekedéssel is kiválóan megközelíthető.A Bécsi út és a Vörösvári út néhány percre található, így a belváros, a Szentendrei út vagy az M0-s körgyűrű is gyorsan elérhető.A 137-es, 237-es és 260-as buszjáratok néhány perc sétával elérhetők, a H5-ös HÉV pedig Csillaghegy és Békásmegyer irányából biztosít közvetlen kapcsolatot a belvárossal.SZOLGÁLTATÁSOK ÉS INFRASTRUKTÚRA:A mindennapi élethez szükséges minden megtalálható a közelben:bevásárlási lehetőségek (GoBuda, Stop Shop, Aldi, Lidl),valamint gyógyszertár, posta, pékség, helyi kisboltok is percek alatt elérhetők.A környék iskolái és óvodái kimondottan népszerűek a családosok körében — többek között a Medgyessy Ferenc Általános Iskola, a Zöld Óvoda, valamint a Táborhegyi Népház programjai is vonzzák a környékbelieket.ÉLETMÓD ÉS HANGULAT:Táborhegyet a zöld, levegős utcák, a nyugalom, és a barátságos közösség jellemzik.A környék lakói szeretik, hogy a természet karnyújtásnyira van: a Táborhegyi Park, a Testvérhegyi lejtők és a Római-part is néhány perc alatt elérhetők.A hétvégék itt gyakran a kertben, a teraszon vagy a Duna-parti kávézókban telnek — ez az a ritka városi helyszín, ahol a városi kényelem és a kertvárosi béke valóban találkozik.PROJEKTA projekt két, letisztult vonalvezetésű, modern megjelenésű épületből áll, összesen négy lakással.A homlokzatot világos tónusok, természetes fa részletek és nagy üvegfelületek jellemzik, melyek a nappali terekbe áramló fényt még hangsúlyosabbá teszik.A tervezés célja egyértelmű volt: praktikus, élhető és hosszú távon értékálló otthonokat létrehozni.A házak önálló hőszivattyús rendszert kaptak, a hőleadás padlón és mennyezeten történik, ami egyenletes hőérzetet és alacsony fenntartási költséget biztosít.A Loxone épületautomatizálás segítségével a világítás, árnyékolás, hőmérséklet, szellőztetés, audió és a biztonsági funkciók is intelligensen vezérelhetők – a modern technológia diszkréten, mégis látványosan szolgálja a kényelmet.Az ingatlanokhoz opcionálisan vásárolható garázs + tároló ára 10M + 10M Ft/db. OTTHONOKA lakások térszervezése egyszerre logikus és érzékeny.A nappali terek tágasak, fényben úsznak, a nagy üvegfelületek finoman keretezik a kert látványát.A fedett teraszok a nappalik természetes folytatásai – az üvegfalak mögött a külső és belső határa szinte eltűnik.A kertek gondosan füvesítettek, öntözőrendszerrel és robotfűnyíróval felszereltek, így valóban gondtalanul tarthatók.A konyhák teljesen gépesítettek, az egyedi bútorok és a fa felületek természetes melegséget hoznak a terekbe.A hálószobák intimek, jól elkülönülnek a közösségi zónáktól, a fürdők modern, mégis időtálló burkolatokkal készültek.A világítás koncepciója tudatosan épít a fények hangulatkeltő szerepére – estére a terek puha, meghitt tónusba váltanak.Ha Ön is modern, kis lakóközösségű, zöld környezetben épült otthont keres Óbuda egyik legkedveltebb részén, az ÉR Garden Homes-ban megtalálta.Tekintse meg személyesen, és tapasztalja meg, milyen, amikor az új otthon tényleg csak Önre.

 Hirdető adatai

Hirdető neve: Otthon Centrum
Kapcsolattartó: Török Dávid
Hirdető telefonszáma: +36 70 461 9106
Honlap: -