Somogy megye, Ságvár


 

Ingatlan adatai

Irányár: 250 000 Ft/hó
Típus: ház
Kategória: kiadó
Alapterület: 88 m2
Fűtés: egyéb
Állapota: -
Szobák száma: 3
Építés éve: 1975
Szintek száma: -
Telekterület: 925 m2
Kert mérete: 925 m2
Erkély mérete: 80 m2
Felszereltség: -
Parkolás: -
Kilátás: -
Egyéb extrák:  
-

Részletes leírás

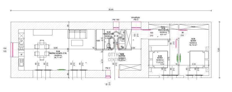
Ságváron kiadásra kínálom ezt a teljeskörűen felújított, 87 m²-es vegyes falazatú családi házat. Az ingatlan bútorozottan (új bútorokkal) kerül kiadásra.A ház kellemes, nem forgalmas utcában található.Ságvár egy folyamatosan fejlődő település, jó az elhelyezkedése és jól megközelíthető.Siófoktól mindössze 10 km-re helyezkedik el és a településeket egy kerékpárút is összeköti.A tágas, világos amerikai konyhás nappali központi helye a ház társasági életének.A két tágas hálószoba biztosítja a lakók magánéletét.A nagyobb hálószobából közvetlenül kijuthatunk a hátsó teraszra, amely tökéletes helyszín a pihenésre, grillezésre, vagy akár a családi összejövetelek lebonyolítására.Jellemzői:-műanyag nyílászáró ( 3 rétegű), motoros redőnnyel felszerelve.- hűtő-fűtő klíma-80 nm terasz-önálló kert és gépkocsi beálló elektromos kapukkal-cserepes lemezA fedett parkolóban telepített töltőberendezés lehetőséget ad arra,hogy kényelmesen, bármikor tölthesd az autódat, anélkül hogy aggódnod kellene az eső, hó vagy más környezeti hatások miatt.A lakás minimum 12 hónapra bérelhető, határozott idejű szerződéssel, amely megegyezés szerint hosszabbítható.A bérleti díj 250.000,-Ft/hó + rezsi (áram, vízdíj..stb. elszámolás alapján )A bérleti opció megkötéséhez 2 havi kaució és 1 havi bérleti díj előre szükséges.Keressen elérhetőségeimen, bővebb információért, a hét bármely napján!

 Hirdető adatai

Hirdető neve: Otthon Centrum
Kapcsolattartó: Kuron Ildikó
Hirdető telefonszáma: +36 70 412 5381
Honlap: -