Hajdú-Bihar megye, Debrecen


 

Ingatlan adatai

Irányár: 185 000 000 Ft
Típus: ház
Kategória: eladó
Alapterület: 210 m2
Fűtés: gáz (cirko)
Állapota: -
Szobák száma: 6
Építés éve: 2000
Szintek száma: -
Telekterület: 736 m2
Kert mérete: 736 m2
Erkély mérete: 19 m2
Felszereltség: -
Parkolás: -
Kilátás: -
Egyéb extrák:  
-

Részletes leírás

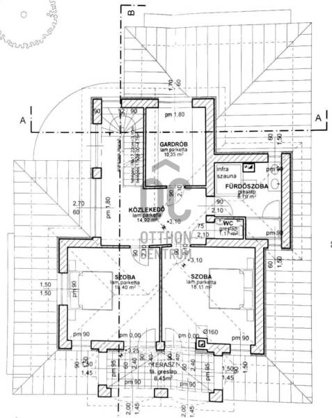
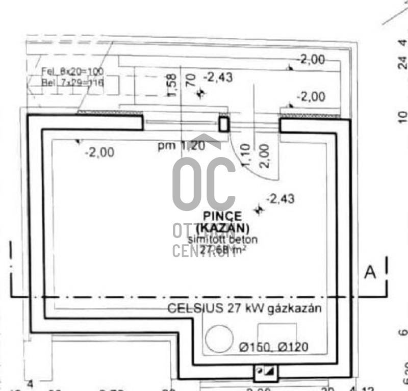
Eladásra kínálok a Bihari kert széles, rendezett, újszerű, parkosított kertes házas utcájában egy 230 nm-es, nappali plusz 5 szobás kialakítású, stílusos, A+ energia osztályú, duplakomfortos, minőségi ketes házat.Telek:- 735 nm, K-Ny tájolású, - a kert parkosított, rendezett, - rajta öntöző rendszer saját kúttal, pihenő résszel, - 26 nm-es fedett kocsibeállóval.Ház:- Fszt: tágas előtér, konyha, étkező, hatalmas nappali, fürdő-WC, 2-3 hálószoba, árnyékos terasz- Emelet: nagy gardrób (lehet lakószoba is), hall, fürdő-WC, 2 tágas, teraszkapcsolatos hálószoba- Pince: komplett gépészet, vízvételi lehetőség- mindenhol minőségi burkolatok, szaniterek, gépészeti kialakításokMűszaki tartalom:- gáz-cirkó fűtés padlófűtéssel, a szobákban radiátorral- többsávos légkondícionáló- stílusos kandalló, mely befűti akár az egész földszinti részt- automatizált csőtermosztátos 4 tagos öntöttvas vegyeskazán, ha szeretne fával tüzelni- szaldós elszámolású napelem rendszer- 38 N+F vakolt téglafal 12 cm-es szigeteléssel- műanyag nyílászárók, redőnyözveA műszaki tartalomnak köszönhetően a ház mérete ellenére havi 18e ft-ból megoldott a fűtés, áram és vízköltség!Amennyiben Önnek egy olyan Otthonra van szüksége, ahol tágas terek vannak, könnyen fenntartható, üzemeltethető, ahol kész és intim a kert, elég 2 autónak a fedett beállás, ahol minden dokumentáció és garanciapapír rendelkezésre áll és nincsenek rejtett hibák, akkor érdemes megnéznie. Ez Az!Hajdú-Bihar, Debrecen, Kertes, dupla komfort, minőségi, napelem, klíma, gáz-cirkó, padlófűtés, stílusos, egyedi, nívós

 Hirdető adatai

Hirdető neve: Otthon Centrum
Kapcsolattartó: Gyurka Csaba
Hirdető telefonszáma: +36 70 461 9716
Honlap: -