Budapest, II.kerület


 

Ingatlan adatai

Irányár: 609 504 000 Ft
Típus: lakás (újépítésű)
Kategória: eladó
Alapterület: 224 m2
Fűtés: -
Állapota: új
Szobák száma: 5
Építés éve: 2024
Szintek száma: -
Telekterület: -
Kert mérete: -
Erkély mérete: 50 m2
Felszereltség: -
Parkolás: -
Kilátás: kertre néző
Egyéb extrák:  
-

Részletes leírás

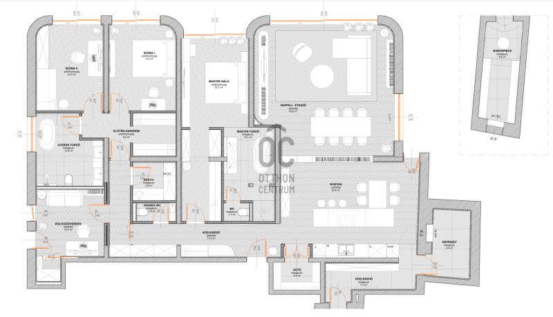
Egy különleges otthon Budán, ahol a modern építészet, a nagyvonalú terek és a természet közelsége a kényelemmel találkozik.ÜDV ITTHON!A Rózsadomb egyik legértékesebb pontján, egy hatlakásos exkluzív társasház részeként kínálja a panorámás élettér, a privát kert és a prémium technológia harmóniáját.A társasházA gondosan megtervezett, modern formavilágú épület mindössze hat lakásból áll, így a benne élők egyszerre élvezhetik az intimitást és a közösség előnyeit. A társasházhoz parkosított kert tartozik, automata öntözőrendszerrel, tűzrakóhellyel és wellness-előkészítésekkel. A felszíni kocsibeállók a mindennapi kényelmet szolgálják.A lakások emelt szerkezetkész állapotban várják: a gépészeti rendszerek, az okosotthon-megoldások és a prémium nyílászárók már elkészültek, így a belső kialakítás teljes egészében az új tulajdonos döntésére van bízva. Magáncélra vásárlóknak a teljes belső kivitelezést 8 héten belül a beruházó elvégzi, a végső részletekig személyre szabottan.A kivitelezés során magas minőségű, nemzetközi márkák anyagai kerülnek beépítésre, amelyek a vételár részét képezik.\"Szállodai\" szolgáltatásokA 3 éven át a szállodai szintű kényelmet biztosító csomag a vételár részét képezi:- 24/7 Biztonsági Szolgálat – Professzionális, 24 órás biztonsági szolgálat a nap minden percében felügyeli a területet, diszkréten, de határozottan biztosítva a teljes nyugalmat.- Concierge & Valet Szolgáltatás – Az Ön Nappali Asszisztense. Reggel 7-tól este 7-ig, a hét minden napján, személyes asszisztensként, kezeli a csomagjait, fogadja a vendégeit, és egyetlen telefonhívásra megszervezi az éttermi foglalást vagy a színházjegyet. Elég a bejáratnál megállnia, a concierge munkatársunk az autóját biztonságba helyezi, és induláskor ugyanígy előkészíti Önnek.- Prémium Takarítás – 5-csillagos otthonélmény, minden hétköznap. Housekeeping csapatunk hetente egyszer teljes körű takarítást végez – portörléssel, porszívózással, a fürdők és a konyha higiéniai tisztításával, valamint ágynemű- és törölközőcserével. A hét többi munkanapján pedig ugyanazt a kényelmet élvezheti, mint egy ötcsillagos szállodában: a bejárónő megveti az ágyat, elpakol, rendet tesz, és gondoskodik arról, hogy minden nap egy friss, rendezett, gondozott otthonba érkezzen haza.- Műszaki Gyorsszerviz – 48 Órás Megoldási Garancia. A \"gondtalanság\" inkluzív: bármilyen műszaki probléma merüljön is fel otthonában – dedikált szakemberünk 48 órán belül garantáltan megoldja azt..- Autómosás. Az Ön ideje túl értékes ahhoz, hogy autómosóban töltse. Ezért hetente egyszer, az Önnek megfelelő időpontban, teljes körűen lemossuk és kitakarítjuk autóját.- Privát Séf Szolgáltatás – Éttermi élmény otthon. Évente kétszer egy privát séf készít el egy exkluzív, több fogásos vacsorát az Ön otthonában, akár 6 fő részére. A séf gondoskodik a bevásárlásról, a főzésről, a tálalásról és a konyha utáni rendrakásról is. Önnek csak élveznie kell a tökéletes estét.A lakásEz az egyedülálló lakás az épület egyik ékköve: a déli tájolású, hatalmas üvegfelületeken át kitáruló panoráma Pasarétre és az Istenhegyre nap mint nap csodás kilátást biztosít. A tágas nappali-étkező-konyha, a 4 hálószoba, a gardróbok és a háztartási helyiség mind a kényelmet szolgálják, míg a borospince külön hangulatot és értéket ad az otthonnak.Saját kert – saját világA lakás egyik legnagyobb különlegessége a parkosított privát kert, amely közvetlenül kapcsolódik a lakótérhez. Az automata öntözőrendszerrel gondozott zöldfelület, valamint a közösségi kert, jacuzzi- és szaunaház-előkészítése valódi wellness-élményt varázsol a mindennapokba.Miért különleges?Ez a villalakás több mint egy ingatlan: életérzés. Saját kert, örök panoráma, csúcstechnológia és a belső kialakítás szabadsága – mindez Budán, egy exkluzív, kis lakásszámú társasházban. A házban további lakások is elérhetők.Befektetésre is: a tulajdonos egy ingatlanalap, amely hosszú távú bérleti szerződéssel rendelkezik egy stabil hátterű bérlővel. A bérlő irodai funkcióra veszi igénybe az ingatlant, 5 éves időtartamra, az ingatlan értékének éves szinten 6%-ának megfelelő, euróalapú bérleti díjjal. Befektetési vásárlás esetén a vevőnek nincs további teendője: a jelenlegi tulajdonos ingatlanalap teljes körűen intézi a bérlővel kapcsolatos ügyeket, beleértve a bérleti szerződés fenntartását, a belső kialakítást és az üzemeltetést is.Hívjon!Budapest, Buda, II. kerület, 2. kerület, eladó lakás, villalakás, 5 szoba, 2 fürdő, saját kert, panoráma, hőszivattyús fűtés, hőszivattyús hűtés

 Hirdető adatai

Hirdető neve: Otthon Centrum
Kapcsolattartó: Pieke Dénes
Hirdető telefonszáma: +36 70 388 5291
Honlap: -