Pest megye, Pomáz


 

Ingatlan adatai

Irányár: 43 000 000 Ft
Típus: ház
Kategória: eladó
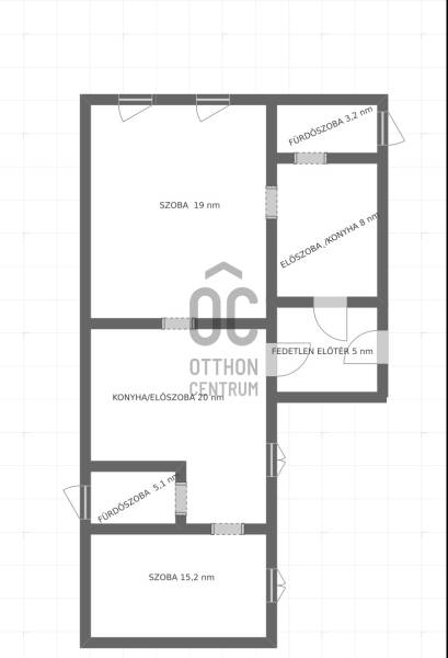
Alapterület: 76 m2
Fűtés: gáz (konvektor)
Állapota: -
Szobák száma: 4
Építés éve: 1930
Szintek száma: -
Telekterület: 96 m2
Kert mérete: 96 m2
Erkély mérete: -
Felszereltség: -
Parkolás: -
Kilátás: -
Egyéb extrák:  
-

Részletes leírás

Eladóvá vált Pomázon egy vegyes falazatú teljesen felújítandó, illetve bontandó ház. Nagyjából az 1930-as évek elején épült. Kert sajnos jelenleg nem tartozik hozzá,de mivel bontandó állapotban van, a későbbiekben kialakítható elképzelés szerint. Jelenleg 2 lakásként használják, van egy fedetlen előtér és onnan 2 külön bejárata van és mindkét lakásban van 1 konyha , 1 fürdőszoba és 1 különnyíló szoba. Az ingatlan elhelyezkedése központi részen van. Autóval 15 perc alatt elérhető Szentendre és Budapest egyaránt. 3 perc sétára elérhetőek a helyi buszjáratok (Csobánka,Pilisszentkereszt,Dobogókő irányába) és 15 perc sétára a H5-ös hévmegálló is elérhető,amivel 40 perc alatt Pesten lehet lenni.A környéken minden megtalálható, mint például orvosi rendelő, éjjel-nappali gyógyszertár,állatorvosi rendelő,SPAR és egyéb bevásárlási lehetőségek,Dera park,bank, posta,éttermek, stb......gyakorlatilag tényleg minden.A környező hegyvidékek közelsége nagyszerű lehetőséget ad a túrázni vágyóknak.Kérdés esetén szeretettel várom hívását!

 Hirdető adatai

Hirdető neve: Otthon Centrum
Kapcsolattartó: Nyilas Szabina
Hirdető telefonszáma: +36 70 469 3821
Honlap: -