Heves megye, Domoszló


 

Ingatlan adatai

Irányár: 5 990 000 Ft
Típus: ház
Kategória: eladó
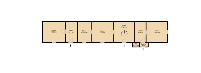
Alapterület: 107 m2
Fűtés: -
Állapota: felújítást igényel
Szobák száma: 7
Építés éve: 1940
Szintek száma: -
Telekterület: 169 m2
Kert mérete: 169 m2
Erkély mérete: -
Felszereltség: -
Parkolás: -
Kilátás: -
Egyéb extrák:  
-

Részletes leírás

Egy igazán különleges lehetőség vár rád Domoszlón, Heves vármegyében! Ez a felújítandó ház tökéletes választás családosok számára, akik szeretnék megvalósítani álmaik otthonát egy csendes és felkapott környéken.Ha Szereted a kihívásokat és az egyedi tervezést akkor ez a lehetőség neked lett kitalálva! Az ingatlan alapterülete 107,45 nm, ami bőséges teret biztosít a kreatív ötleteid számára. A telek mérete 169 nm, így a kert kialakítására is van lehetőség, ahol a gyerekek biztonságosan játszhatnak, vagy ahol a baráti összejöveteleket tarthatod. A telek közös udvarban található ami ne rémisszen el mert Domoszlót a jó szomszédi viszony jellemzi teljes mértékben!A házban összesen 7 szoba található, így bőven van hely a család minden tagjának, sőt akár vendégek fogadására is. Az ingatlan állapota felújítandó, ami lehetőséget ad arra, hogy saját ízlésed és stílusod szerint alakítsd ki a tereket. Az egyedi tervezés lehetővé teszi, hogy a legmodernebb megoldásokat és kényelmet hozd el az otthonodba. Mivel az ingatlan tehermentes, gyorsan és zökkenőmentesen birtokba veheted. Gáz az utcában található de kályha illetve cserépkályha vagy klíma megoldás lehet számodra a napelem vagy hőszivattyűs padlófűtés ha úgy is teljeskörűen fel fogod újjítani!A környék ellátottsága kiváló, így minden szükséges szolgáltatás könnyedén elérhető. A közeli boltok, iskola és óvoda mind a családosok kényelmét szolgálják. A csendes utcák pedig biztonságos környezetet nyújtanak a gyerekek számára, ahol bátran felnőhetnek. A közlekedési lehetőségek is kedvezőek Gyöngyös 20 km Eger 40 km.A közeli buszmegállókból rendszeres járatok indulnak, így a mindennapi ingázás sem jelent problémát. Ez az ingatlan nem csupán egy ház, hanem lehetőség arra, hogy egy igazi otthont teremts a családod számára. Az egyedi tervezés és a felújítás során saját ízlésed szerint formálhatod a tereket, így igazán személyre szabott életteret hozhatsz létre. Ha szeretnél egy olyan ingatlant, amelyben a családod boldogan élhet, ne habozz, hiszen az ilyen lehetőségek gyorsan elkelnek! Bármilyen kérdésed van, vagy szeretnéd megtekinteni az ingatlant, bátran kereshetsz! Bizalommal állok rendelkezésedre, hogy segítségedre legyek a vásárlási folyamat során. Ne hagyd ki ezt a remek lehetőséget, hiszen az álomotthonod csak egy lépésnyire van!

 Hirdető adatai

Hirdető neve: Otthon Centrum
Kapcsolattartó: Nagy Zoltánné Zsani
Hirdető telefonszáma: +36 70 469 3286
Honlap: -