Somogy megye, Balatonlelle


 

Ingatlan adatai

Irányár: 104 900 000 Ft
Típus: ház
Kategória: eladó
Alapterület: 215 m2
Fűtés: gáz (cirko)
Állapota: -
Szobák száma: 9
Építés éve: 1995
Szintek száma: -
Telekterület: 1 122 m2
Kert mérete: 1 122 m2
Erkély mérete: 50 m2
Felszereltség: -
Parkolás: -
Kilátás: -
Egyéb extrák:  
-

Részletes leírás

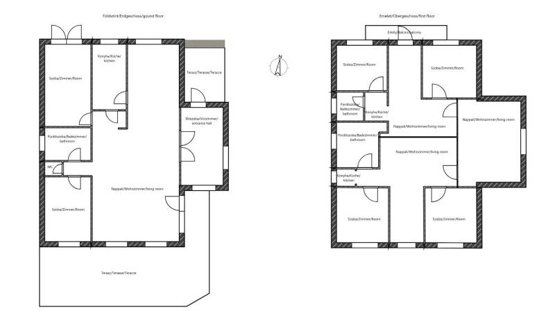
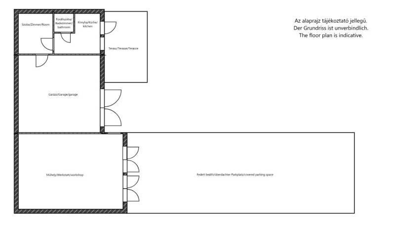
Vannak házak, amelyekről már az első percben érzed, hogy különlegesek. Ez az ingatlan is ilyen – meleg, hívogató és tele lehetőséggel!Balatonlellén, központi, mégis csendes és biztonságos utcában, az óvoda, iskola és bölcsőde közelében eladó egy sokoldalúan hasznosítható, tágas családi ház melléképülettel és gyümölcsfákkal teli kerttel.A Balaton szabadstrandja mindössze 5–6 perc kerékpárral, így az otthon és a nyaralás élménye tökéletesen összefonódik.Telek: 1122 nm teljesen körbekerítettGyümölcsfákkal tarkított (füge, cseresznye, dió, málna) árnyas kert.FÖLDSZINT: 108 m²*előszoba* új konyha beépített gépekkel (sütő, mosogatógép, mikró)* hatalmas étkező-nappali (déli tájolású, világos terek)* 2 hálószoba* fürdőszoba + külön WC* fedett, árnyas terasz: 34 m²EMELET: 107 nm, külön bejárattal is megközelíthető * két apartmanná alakítható*4 szoba*2 fürdő*2 minikonyhaIdeális több generáció számára vagy nyaraltatásraMűszaki adatok:Porotherm tégla falazatBramac tetőcserépEgyedi gyártású tölgyfa nyílászárók, díszes tömörfa ajtókeretek, kazettás mennyezetKitűnő állapotú, újrarakatott cserépkályhaGázkazán + gázkonvektoros fűtésMelegvíz villanybojlerről3×20 A nappali + 3×20 A éjszakai áram, földkábeles csatlakozássalPince: 23 m² – bor, zöldség, növények tárolására kiválóMelléképület és parkolás*Felújítandó földszintes nyári lak garázzsal*Fedett autóbeálló és garázs – akár hajótárolásra is megfelelő, vállalkozásra, műhelynek, táncteremnek is alkalmas lehet.Elhelyezkedés és környezet:Balaton: 2 km – kerékpárral 6 percIskola: 300 mÓvoda és bölcsőde: 200 mA közelben minden elérhető: Lidl, Aldi, Spar, Jysk, Rossmann, DM, mentőállomás, kikötő, hajóállomásA tágas terek, minőségi anyagok és a kiváló elhelyezkedés egyaránt hozzájárulnak ahhoz, hogy ez az otthon hosszú távon értékálló befektetés legyen.OTTHON START, CSOK+ igényelhető az ingatlanra.További információért keressen bátran!

 Hirdető adatai

Hirdető neve: Otthon Centrum
Kapcsolattartó: Csizmadia-Schveiger Eszter
Hirdető telefonszáma: +36 70 388 6291
Honlap: -