Pest megye, Taksony


 

Ingatlan adatai

Irányár: 134 000 000 Ft
Típus: ház
Kategória: eladó
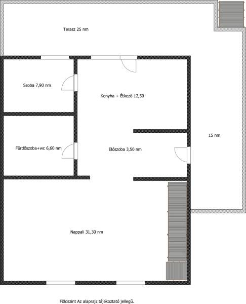
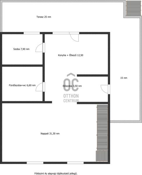
Alapterület: 127 m2
Fűtés: gáz (cirko)
Állapota: -
Szobák száma: 4
Építés éve: 1975
Szintek száma: -
Telekterület: 811 m2
Kert mérete: 811 m2
Erkély mérete: 40 m2
Felszereltség: -
Parkolás: -
Kilátás: -
Egyéb extrák:  
-

Részletes leírás

Mediterrán oázis Taksonyban – saját medencével, Dunaharasztitól pár percre, Budapesttől csak 15 percre! Képzeld el, hogy minden nap úgy ébredsz, mintha nyaralnál a saját kertedben.A csillogó medence, a halastó, a kerti sütögető és az illatot árasztó mediterrán növények együtt teremtenek pihentető, mediterrán hangulatot – mindezt Budapest és Dunaharaszti közvetlen közelében!Ez a 127 m²-es, kétszintes, téglaépítésű és szigetelt családi ház egy 811 m²-es, gondosan parkosított telken várja új tulajdonosát.A ház dupla komfortos, az emelet 2024-ben teljes felújításon esett át, így csak költözni kell!Földszint: előszoba, tágas nappali, konyha + étkező, hálószoba, fürdőszoba, lépcső alatti gardrób. Emelet: két szoba, közlekedő, fürdőszoba, gardrób.A terek világosak, jól kihasználtak, kényelmes életteret kínálnak. Körbeölelő terasz a családi és baráti összejövetelek kedvenc helyszíne. A kert valódi mediterrán paradicsom:medencehalastóautomata öntözőrendszerkerti sütögetőárnyas pihenőrészgondozott növényzet, mediterrán fák és bokrokA kert végében 8 m²-es tároló / vállalkozásra is használható helyiség, az épület alatt 16,7 m²-es pince, a ház előtt pedig 2024-ben épült automata kapuval ellátott dupla autóbeálló és térkövezett parkoló található.A telefonról vezérelhető kamerás rendszer modern biztonságot nyújt. Közlekedés és elhelyezkedés:Az ingatlan Taksony csendes, rendezett utcájában található, Dunaharaszti mindössze pár percre, Budapest pedig 15–20 perc alatt elérhető autóval.Kiváló tömegközlekedés (HÉV, busz), valamint iskola, óvoda, orvosi rendelő, boltok, gyógyszertár, sportpálya, éttermek is a közelben – minden, ami a kényelmes élethez kell. Ez az otthon nem csupán egy ház – ez egy életérzés: mediterrán hangulat, nyugalom, kényelem és szabadság egy helyen!

 Hirdető adatai

Hirdető neve: Otthon Centrum
Kapcsolattartó: Gál Jánosné
Hirdető telefonszáma: +36 70 465 7056
Honlap: -