Pest megye, Szigethalom


 

Ingatlan adatai

Irányár: 15 000 000 Ft
Típus: ház
Kategória: eladó
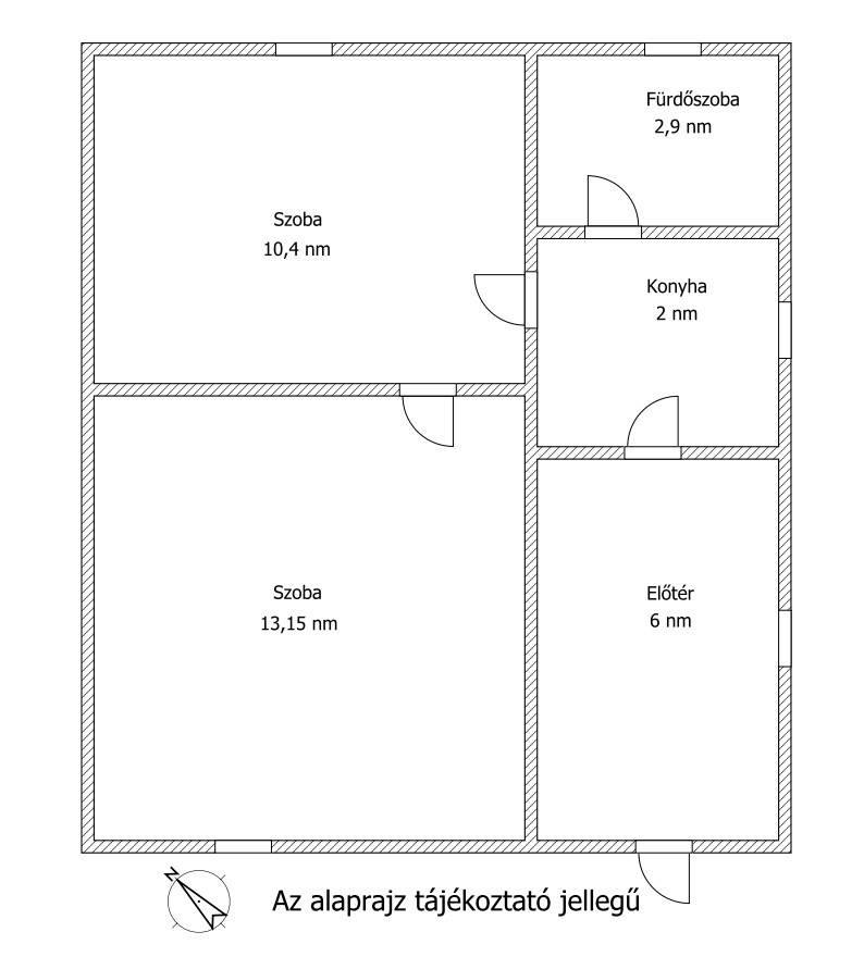
Alapterület: 34 m2
Fűtés: -
Állapota: felújítást igényel
Szobák száma: 2
Építés éve: 1960
Szintek száma: -
Telekterület: 273 m2
Kert mérete: 273 m2
Erkély mérete: -
Felszereltség: -
Parkolás: -
Kilátás: -
Egyéb extrák:  
-

Részletes leírás

Befektetők figyelem! Kivételes lehetőség Szigethalmon!Szigethalmon a Mű úton található ez az osztatlan közös tulajdonú ingatlan mely kivételes lehetőséget kínál a befektetők számára. Ez a 35 négyzetméteres, felújítandó ház, melyhez tartozik egy saját használatú kertrész is, ideális alapot nyújt a kreatív ötletek megvalósításához. Az ingatlanban két szoba, egy kisméretű konyha valamint egy előtér és egy fürdőszoba várja az új tulajdonos saját ízlésének és elképzelésének megfelelő átalakítást, hogy modern, funkcionális tér jöjjön létre. A saját használatú kertrész pedig értéket ad az ingatlanhoz, lehetőséget biztosítva a szabadban való pihenésre, kikapcsolódásra.A közeli üzletek, iskolák és egészségügyi intézmények pedig tovább növelik a helyszín vonzerejét, így az ingatlan nemcsak lakóhely, hanem befektetési lehetőség szempontjából is kiemelkedő. A közlekedési lehetőségek is kedvezőek: Szigetszentmiklós központja könnyen megközelíthető autóval és tömegközlekedéssel egyaránt. A buszmegállók és a HÉV állomás közelsége lehetővé teszi, hogy Budapest is gyorsan elérhető legyen. A környék infrastruktúrája jól kiépítettA környék fejlődése és a kereslet növekedése miatt a jövőbeli értéknövekedés szempontjából is ígéretes választás. A Szigethalmon elérhető ingatlanok iránti kereslet folyamatosan növekszik, így ez a lehetőség nemcsak lakhatási, hanem hosszú távú pénzügyi befektetési szempontból is vonzó, ezért remek lehetőséget kínál a befektetők számára, akik szeretnék kihasználni a felújításban rejlő potenciált vagy jól megközelíthető lakóhelyet keresnek az agglomerációban.Ne habozzon, hiszen az ilyen lehetőségek gyorsan elkelnek! Kérdéseivel bizalommal fordulhat hozzám, szívesen segítek Önnek az ingatlan megismerésében és a vásárlási folyamat lebonyolításában.

 Hirdető adatai

Hirdető neve: Otthon Centrum
Kapcsolattartó: Solt Péter
Hirdető telefonszáma: +36 70 716 8101
Honlap: -