Bács-Kiskun megye, Kiskunfélegyháza


 

Ingatlan adatai

Irányár: 36 000 000 Ft
Típus: lakás (tégla)
Kategória: eladó
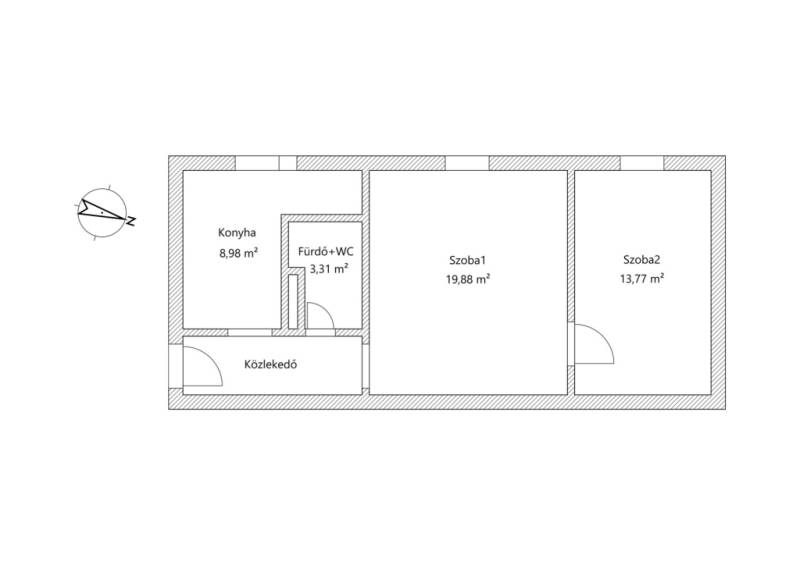
Alapterület: 49 m2
Fűtés: gáz (konvektor)
Állapota: -
Szobák száma: 2
Építés éve: 1951
Szintek száma: 2
Telekterület: -
Kert mérete: -
Erkély mérete: -
Felszereltség: -
Parkolás: -
Kilátás: udvari
Egyéb extrák:  
-

Részletes leírás

Otthonok és megoldások!Kiskunfélegyháza belvárosában eladásra kínálunk egy 48 m²-es, 2. emeleti, 2 szobás, csendes, belső udvarra néző, napfényes, gyorsan birtokba vehető, szigetelt téglalakást, amely várja új tulajdonosát.Főbb jellemzői:Alapterület: 48 m², 2 szobaÁllapot: szép, azonnal költözhetőKöltségek: rendkívül alacsony rezsiKomfort: hőszigetelt műanyag ablakok (redőnnyel, szúnyoghálóval)Társasház: szigetelt, felújított tetős, rendezettFűtés: gázkonvektorExtrák: saját, zárható tároló a zárt udvarbanStátusz: tehermentes, villámgyorsan birtokba vehetőEz az ingatlan egy ritka lehetőség. Akár saját részre keres egy gondozásmentes, kényelmes otthont, akár befektetne egy azonnal profitot termelő lakásba, itt megtalálta. A modern nyílászáróknak és a szigetelt háznak köszönhetően a fenntartása filléres, a belvárosi elhelyezkedés pedig garantálja az értékállóságot és a könnyű kiadhatóságot.Ez egy stresszmentes vétel: nincs felújítás, nincsenek rejtett költségek, csak a kulcsátvétel van hátra.Ne várja meg, amíg más csap le rá! Hívjon még ma, és nézzük meg!

 Hirdető adatai

Hirdető neve: GDN Ingatlanhálózat
Kapcsolattartó: Kocsis Zoltán
Hirdető telefonszáma: +36-30-667-3612
Honlap: -