Budapest, III.kerület


 

Ingatlan adatai

Irányár: 189 000 000 Ft
Típus: lakás (újépítésű)
Kategória: eladó
Alapterület: 103 m2
Fűtés: -
Állapota: új
Szobák száma: 4
Építés éve: 2024
Szintek száma: -
Telekterület: -
Kert mérete: -
Erkély mérete: 29 m2
Felszereltség: -
Parkolás: -
Kilátás: kertre néző
Egyéb extrák:  
-

Részletes leírás

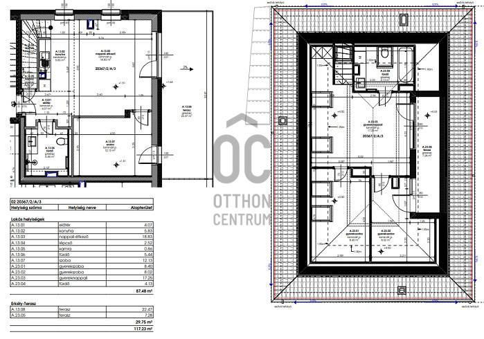
Modern, új építésű otthon, ahol a kényelem és a minőség találkozik!A 3. kerület Jablonka úton, egy 2024-ben épült, mindössze 2x4 lakásos, exkluzív társasházban kínálunk eladásra egy 4 szobás, 2 fürdőszobás, magas műszaki tartalommal megépített, világos, tágas belső kétszintes lakást. Az ingatlan egy 87,5 nm-es belső alapterületű lakótérrel, valamint egy 22,5 nm-es panorámás terasszal és egy 7,5 nm-es erkéllyel rendelkezik.A lakás tartozéka egy modern, teljesen felszerelt konyhabútor, amely már benne foglaltatik az árban.Kiemelt műszaki tartalom:* Hőszivattyús **mennyezeti és padlófűtés/hűtés** rendszer – környezetbarát, energiatakarékos és rendkívül kényelmes* Kiváló szigetelés, alacsony rezsiköltségek* Modern burkolatok, igényes kivitelezés* Teremgarázs hely (további– 15 millió Ft)Miért különleges ez a lakás?A hőszivattyús rendszer a legkorszerűbb fűtési-hűtési megoldások egyike: környezetbarát módon hasznosítja a környezet energiáját, így jelentős energiamegtakarítást eredményez. A mennyezeti és padló hőleadásnak köszönhetően a lakásban egyenletes hőmérséklet uralkodik, nincs szükség radiátorokra, ami esztétikailag is sokkal letisztultabb enteriőrt eredményez.Lokáció – Életminőség kompromisszumok nélkülA Jablonka út a 3. kerület egyik legkeresettebb része: csendes, zöldövezeti környezet, mégis közel a városi infrastruktúrához. A közelben óvodák, iskolák, bevásárlási lehetőségek, túraútvonalak és sportolási lehetőségek is megtalálhatók. A közlekedés kiváló – autóval és tömegközlekedéssel is gyorsan elérhető a belváros.Kinek ajánljuk?*Családoknak, akik értékelik a nyugodt, zöld környezetet, mégis szeretnének a városhoz közel maradni.*Befektetőknek, akik keresik a modern , jól kiadható ingatlanokat.*Pároknak vagy idősebbeknek, akik modern, energiatakarékos otthonra vágynak.Ár-érték arányban kivételes lehetőség**Ez a lakás nem csupán egy új otthon, hanem egy értékálló befektetés is. A kiváló lokáció, az alacsony fenntartási költségek és a prémium kivitelezés miatt hosszú távon is megtérülő választás. Az ár (199,9millió Ft + 15 millió garázs) a környék és a minőség figyelembevételével kiemelkedően versenyképes a hasonló kategóriájú újépítésű ingatlanok között.Ne hagyja ki ezt a különleges lehetőséget!További információért és megtekintésért keressen bizalommal!Díjmentes, bankfüggetlen hiteltanácsadással támogatjuk vevő ügyfeleinket a számukra legelőnyösebb finanszírozási döntések meghozatalában. Igény szerint megbízható ügyvédi háttérrel, energetikai tanúsítvánnyal, villamos biztonsági felülvizsgálattal és home staging szolgáltatással is támogatjuk Önt abban, hogy az adásvétel folyamata gördülékeny, valamint a lehető legelőnyösebb legyen az Ön számára.

 Hirdető adatai

Hirdető neve: Otthon Centrum
Kapcsolattartó: Móricz Krisztina
Hirdető telefonszáma: +36 70 716 8836
Honlap: -