Budapest, I.kerület


 

Ingatlan adatai

Irányár: 4 251 099 Ft/hó
Típus: iroda
Kategória: kiadó
Alapterület: 770 m2
Fűtés: -
Állapota: -
Szobák száma: -
Építés éve: 2007
Szintek száma: -
Telekterület: -
Kert mérete: -
Erkély mérete: -
Felszereltség: -
Parkolás: -
Kilátás: -
Egyéb extrák:  
-

Részletes leírás

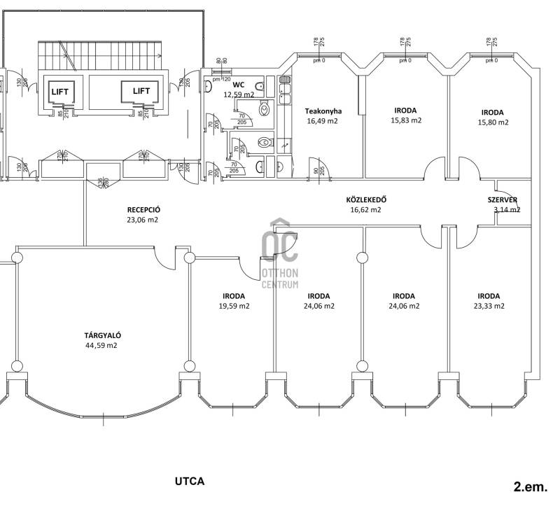
I. Ker. KÖZPONTI RÉSZÉN, JÓ KÖZLEKEDÉSI ADOTTSÁGOKKAL RENDELKEZŐ, de ugyanakkor CSENDES, KIS FORGALMÚ MELLÉKUTCÁBAN, egy 1990-es évek elején épült -2007-ben teljeskörűen felújított- nettó 2800 m2 IRODATERÜLETTEL (bruttó 3270 m2 az épület) RENDELKEZŐ, 51 FÉRŐHELYES 2 SZINTES TEREMGARÁZS, FÖLDSZINT + 7 EMELETES, DUPLA LIFTES, DNY-i tájolású, FELSŐ SZINTEKRŐL PANORÁMÁS (többek között a Gellért hegyre) IRODAHÁZBAN kínálunk bérbeadásra 770 m2 irodaterületet 8 db teremgarázs hellyel (+120 Eur/db+áfa).A bérbeadó terület az épület teljes 4. és 5. emeletén 770 m2-en (388 m2 + 382 m2), valamint a 2.emelet kb. 2/3-ad részén helyezkedik el, ami további 260 m2-t jelent. Természetesen lehetőség van a 2. emeleti rész külön bérlésére is. Az ingatlan a modern irodák követelményeinek maximálisan megfelel: FŰTÉS-HŰTÉSI FAN-COIL RENDSZER, HŐSZIVATTYÚS FOLYADÉKHŰTŐ, 4 CSÖVES KLÍMA, NAPELEM, 24 ÓRÁS PORTASZOLGÁLAT, DUPLA LIFT (teremgarázstól a legfelső emeletig) RECEPCIÓ, SZÜNETMENTES SZÁMÍTÓGÉP HÁLÓZAT, TŰZ és BIZTONSÁGI RIASZTÓRENDSZER, TELEFON és INTERNETKAPCSOLAT az irodákban, VIDEÓ KAMERÁS RENDSZER. Az épületen belül, az ÖSSZES FAL KÖNNYEN BONTHATÓ VÁLASZFAL, EZÉRT a LEENDŐ BÉRLŐ KÖNNYEDÉN a SAJÁT ELVÁRÁSAINAK MEGFELELŐEN ALAKÍTHATJA a tereket. Jelenleg az egész épület -a kínált 770 + 260 m2 kivételével- bérbe van adva. Az IRODAHÁZHOZ TARTOZIK egy 5 FÉRŐHELYES ZÁRT FELSZÍNI PARKOLÓ IS, AMIT ELŐZETES FOGLALÁS ALAPJÁN INGYENESEN HASZNÁLHAT A LEENDŐ BÉRLŐ. Nyílászárók típusa: FÉM (dupla hőszigetelt), Belmagasság: 2,7 m. Az alap bérleti díj 14,5 EUR/hó/m2+Áfa, az üzemeltetési előleg 2900 Ft/m2 (ebben a közmű előleg is benne van a saját áramfogyasztás kivételével) ami minden évben külön elszámolás alapján történik.TISZTELT ÉRDEKLŐDŐ!AMENNYIBEN SZÁNDÉKÁBAN ÁLL INGATLANT ELADNI - A LEGRÖVIDEBB IDŐN BELÜL, GARANTÁLT JOGI, ÉS BANKI HÁTTÉRREL - KERESSEN BIZALOMMAL, HOGY EGY SZEMÉLYES HELYSZÍNI FELMÉRÉST KÖVETŐ INGYENES ÉRTÉKMEGÁLLAPÍTÁS UTÁN, EGYÜTT TUDJUNK MŰKÖDNI AZ ÖN INGATLANÁNAK AZ ÉRTÉKESÍTÉSÉBEN IS!

 Hirdető adatai

Hirdető neve: Otthon Centrum
Kapcsolattartó: Csopaki Balázs
Hirdető telefonszáma: +36 70 716 8476
Honlap: -