Bács-Kiskun megye, Kecskemét


 

Ingatlan adatai

Irányár: 119 000 000 Ft
Típus: iroda
Kategória: eladó
Alapterület: 200 m2
Fűtés: -
Állapota: -
Szobák száma: -
Építés éve: -
Szintek száma: -
Telekterület: -
Kert mérete: -
Erkély mérete: -
Felszereltség: -
Parkolás: -
Kilátás: -
Egyéb extrák:  
-

Részletes leírás

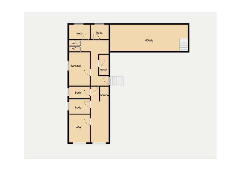
Kivételes lehetőség Kecskemét külterületén – többfunkciós irodaház eladó!Eladásra kínálunk egy sokoldalúan hasznosítható irodaházat Kecskemét családi házas övezetének peremén, mégis könnyen megközelíthető, frekventált elhelyezkedéssel. Az ingatlan 1164 m²-es telken fekszik, így bőséges teret biztosít bővítésre vagy további fejlesztésekre.A jelenlegi kialakítás szerint az épületben 5 különálló iroda, valamint egy 121 m²-es csarnok található, amely számos üzleti tevékenység számára ideális. Az ingatlan teljesen alápincézett, így extra tárolási lehetőségeket kínál.A helységek komfortjáról infra fűtés, új, minőségi nyílászárók (cserélt ablakok és bejárati ajtó), valamint kiépített kamerarendszer gondoskodik.3x32 Amperrel rendelkezik. Gázcsonk telken belül.Az ingatlan alkalmas lehet többek között:- Zöldséges vagy más kiskereskedelmi egység működtetésére- Szépségipari szolgáltatásokra (kozmetika, fodrászat, stúdió)- Parkolóház vagy raktár kialakítására- PékségnekIlletve bármely egyéb vállalkozás számára, amely tágas, jól megközelíthető helyszínt igényel.Rugalmasan alakítható, sok lehetőséget rejtő ingatlan – vállalkozóknak, befektetőknek egyaránt kiváló választás!

 Hirdető adatai

Hirdető neve: Otthon Centrum
Kapcsolattartó: Pintér László
Hirdető telefonszáma: +36 70 388 5586
Honlap: -