Pest megye, Nagykáta


 

Ingatlan adatai

Irányár: 92 500 000 Ft
Típus: ház
Kategória: eladó
Alapterület: 163 m2
Fűtés: -
Állapota: új
Szobák száma: 5
Építés éve: 2026
Szintek száma: -
Telekterület: 2 055 m2
Kert mérete: 2 055 m2
Erkély mérete: 47 m2
Felszereltség: -
Parkolás: -
Kilátás: -
Egyéb extrák:  
-

Részletes leírás

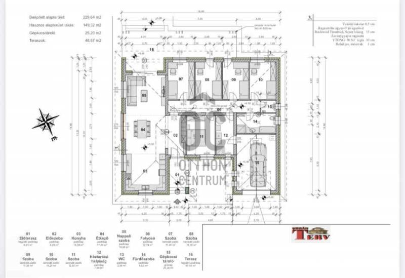
Ár: 92 500 000 FtAlapterület: 163 m²Szobák száma: 5Nagykáta csendes, de központi elhelyezkedésű részén található ez a kiváló állapotú, új építésű ház, amely ideális választás családosok számára. Az ingatlan 163,32 négyzetméteres alapterülettel rendelkezik, amelyen öt tágas szoba található, így bőven van hely a család minden tagjának. A modern, világos nappali és az amerikai konyha tökéletes teret biztosít a közös családi étkezésekhez és a baráti összejövetelekhez. A prémium kivitelezés és a passzívház jelleg garantálja, hogy az ingatlan nemcsak esztétikailag vonzó, hanem energiahatékony is. A házhoz tartozó 2055 négyzetméteres telek lehetőséget ad a szabadban való pihenésre és szórakozásra, a 46,67 négyzetméteres terasz pedig ideális helyszín a nyári estéken való grillezéshez vagy a gyerekek játékához. Az ingatlan fűtése hőszivattyús rendszerrel megoldott, amely nemcsak környezetbarát, hanem gazdaságos is, hiszen alacsony rezsiköltséget biztosít. A hűtés szintén hőszivattyús, így a nyári melegekben is kellemes hőmérsékletet biztosít az otthonában. A környék ellátottsága kiváló, hiszen a közeli boltok, iskolák és egészségügyi intézmények mindössze néhány percnyi sétára találhatók. A tömegközlekedés is könnyen elérhető, így a város többi része könnyen megközelíthető, legyen szó munkába járásról vagy szabadidős programokról. Az ingatlan elhelyezkedése biztosítja, hogy a család minden tagja könnyedén hozzáférjen a szükséges szolgáltatásokhoz, miközben a csendes környezet garantálja a nyugodt életet. A Nagykátán található ingatlan biztonságos és barátságos környéken helyezkedik el, amely ideális otthont biztosít gyermekek számára, ahol szabadon játszhatnak és felfedezhetik a környezetüket. Az ingatlan nemcsak lakóhelyként, hanem befektetési lehetőségként is remek választás, hiszen a környék folyamatosan fejlődik, így az ingatlan értéke is növekedhet. Főbb jellemzők:- Az ingatlan beton alapra épült, 30-as ytong falazattal és kívülről 15 cm szigeteléssel. A terasz is szigetelt!- A padlástér 30 cm kőzetgyapot szigetelést kapott, így a ház egészében kiemelkedő hőszigetelés biztosított.- Modern, nagy műanyag 3 rétegű, bukó-nyíló, duplán szigetelt ablakok gondoskodnak a világos, tágas terekről.- Jelenleg 5 szoba + nappali kialakítású, viszont a 4 hálószoba könnyedén összenyitható, így akár két nagy méretű szobát is kialakíthat új tulajdonosa.- A ház teljes területén – beleértve a garázst is – padlófűtés található, maximális komfortot biztosítva.- AAA+ energetikai besorolású passzív ház – energiatakarékos és korszerű, mégis nyitható ablakokkal!- Kamerarendszerrel felszerelt az extra biztonságért.- Garázs távirányítós ajtóval, kényelmes gépkocsi beállás.A tulajdonos a következő munkálatokat vállalja még: szegélyek felhelyezése, ajtók beállítása, valamint a festés. A térkő és a terasz burkolat kialakítása megegyezés kérdése.A használatbavételi engedély folyamatban, 2026 elejétől az ingatlan hitelre is alkalmas lesz!Bármilyen kérdése merülne fel az ingatlannal kapcsolatban, kérem, ne habozzon keresni a hét bármely napján! Szívesen állok rendelkezésére, hogy segítséget nyújtsak Önnek az ingatlanvásárlás folyamatában, és biztosítsam, hogy a legjobb döntést hozza meg.Ez az ingatlan a \"Felező csomag\" megbízási portfólióhoz tartozik. Részletek az Otthon Centrum weboldalán.

 Hirdető adatai

Hirdető neve: Otthon Centrum
Kapcsolattartó: Pappné Tatár Krisztina
Hirdető telefonszáma: +36 70 461 9176
Honlap: -