Pest megye, Cegléd


 

Ingatlan adatai

Irányár: 84 000 000 Ft
Típus: ház
Kategória: eladó
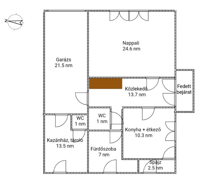
Alapterület: 114 m2
Fűtés: gáz (cirko)
Állapota: -
Szobák száma: 5
Építés éve: 1990
Szintek száma: -
Telekterület: 836 m2
Kert mérete: 836 m2
Erkély mérete: 4 m2
Felszereltség: -
Parkolás: -
Kilátás: -
Egyéb extrák:  
-

Részletes leírás

Családosok figyelmébe ajánljuk ezt a kivételes lehetőséget, amely Cegléd csendes és barátságos környékén található. Az ingatlan egy használt ház, amely 114 négyzetméteres alapterülettel és 836 négyzetméteres telekkel rendelkezik, így bőséges teret biztosít a családi élethez. Az ingatlanban öt szoba található, ami lehetővé teszi, hogy minden családtag saját privát teret kapjon, miközben a tágas nappali ideális helyszín a közös családi programokhoz és az együtt töltött időhöz. A ház állapota átlagos, így lehetőséget nyújt arra, hogy saját ízlésének megfelelően alakítsa át. A fürdőszoba egy helyiségben került kialakításra, ami praktikus megoldás a mindennapi használat során. A 4 négyzetméteres erkély pedig tökéletes helyszín a reggeli kávézásra, vagy a naplemente megcsodálására. A gáz cirkófűtés és vegyestüzelésű kazán, és a klímaberendezés gondoskodik arról, hogy az ingatlanban mindig kellemes hőmérséklet uralkodjon, függetlenül az évszaktól. A környék előnyei közé tartozik a csendes és biztonságos környezet, ahol a gyerekek szabadon játszhatnak, míg a szülők nyugodtan pihenhetnek. Cegléd városában számos iskola, óvoda és játszótér található, így ideális választás családosok számára. A közlekedési lehetőségek is kedvezőek, hiszen a város jól megközelíthető autóval, és a tömegközlekedés is könnyen elérhető, így a napi ingázás nem jelenthet problémát. Az ingatlan tehermentes, ami gyors és zökkenőmentes vásárlást tesz lehetővé. A vételárba akár beszámítható egy ceglédi lakás 40 millió forint értékig! Az ingatlan állapota és elhelyezkedése miatt befektetési célokra is kiválóan alkalmas, hiszen a környék folyamatosan fejlődik, és a jövőbeli értéknövekedés garantált. Amennyiben kérdései lennének az ingatlannal vagy a vásárlási folyamattal kapcsolatban, kérem, ne habozzon megkeresni! Szívesen állok rendelkezésére, hogy minden részletet átbeszéljünk, és segítséget nyújtsak az ingatlanvásárlás során. Az Ön elégedettsége a legfontosabb számomra, és bízom benne, hogy ez az ingatlan tökéletes otthona lehet családjának.

 Hirdető adatai

Hirdető neve: Otthon Centrum
Kapcsolattartó: Kozmané Zsiros Krisztina
Hirdető telefonszáma: +36 70 388 5436
Honlap: -