Pest megye, Gödöllő


 

Ingatlan adatai

Irányár: 115 000 000 Ft
Típus: ház
Kategória: eladó
Alapterület: 169 m2
Fűtés: gáz (cirko)
Állapota: felújított
Szobák száma: 4
Építés éve: 2004
Szintek száma: -
Telekterület: 548 m2
Kert mérete: 548 m2
Erkély mérete: 80 m2
Felszereltség: -
Parkolás: -
Kilátás: kertre néző
Egyéb extrák:  
-

Részletes leírás

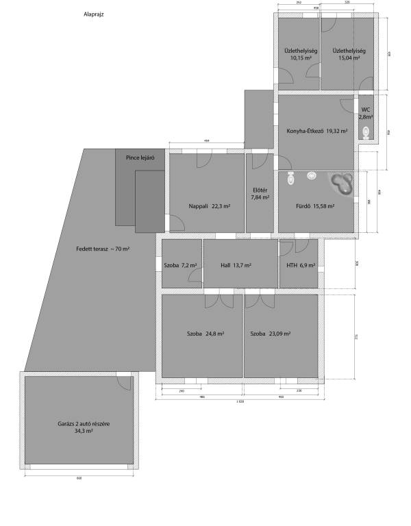
Gödöllőn 548 m2-es telken a Szilágyi Erzsébet utca és a Hunyadi János utca között, két utcafronttal, nettó 168,72m2-es + 34,3m2-es kétautós garázzsal, 13,5m2-es pincével és 70 m2-es fedett terasszal rendelkező családi ház eladó!A 2004-ben épült és folyamatosan modernizált ingatlanban a Hunyadi János utca felőli utcafronti bejárattal egy 35 m2-es üzlethelyiség található. A homlokzati falak 30-as és 38-as tégla falazattal épültek, melyeket 10cm-es EPS dryvit szigeteléssel láttak el. A külső nyílászárók műanyag thermó üvegekkel szereltek. A tetőt zsindely fedi.A fűtésről kombi gázkazán gondoskodik.A parkosított kertet öntözőrendszer locsolja helyettünk. A megközelítőleg 70m2-es fedett terasz kiválló helyszíne a családi összejöveteleknek és a pihenésnek. Az itt található jacuzzi is a vételár részét képezi. Parkolni a Sziláégyi Erzsébet utcáról elektromos garázsajtón megközelíthető 2 autó tárolására kialakított garázsban tudunk.A villamos áram terhelhetőseége 1x32A.Az üzlethelyiség gipszakrtonnal lett elválasztva, hogy akár 2 üzletet is üzemeltethessünk. A könnyedén elbontható válaszfallal 35m2-es helyiséget tudunk kialakítani.Tárolásra a nappali alatt kialakított 13,5m2-es pince kiváló lehetőséget ad.Készpénzes vevők jelentkezését várjuk.Amennyiben hirdetésem felkeltette az érdeklődését vagy egyéb információra van szüksége hívjon bizalommal!

 Hirdető adatai

Hirdető neve: GDN Ingatlanhálózat
Kapcsolattartó: Horváth Péter
Hirdető telefonszáma: +36-70-606-2990
Honlap: -