Hajdú-Bihar megye, Debrecen


 

Ingatlan adatai

Irányár: 139 000 000 Ft
Típus: ház
Kategória: eladó
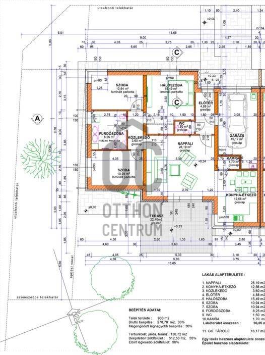
Alapterület: 112 m2
Fűtés: gáz (cirko)
Állapota: -
Szobák száma: 4
Építés éve: 2018
Szintek száma: -
Telekterület: 432 m2
Kert mérete: 432 m2
Erkély mérete: 22 m2
Felszereltség: -
Parkolás: -
Kilátás: -
Egyéb extrák:  
-

Részletes leírás

Debrecen csendes és családbarát környezetében, a Balla lakóparkban eladásra kínálunk egy kivételes, 112 m2-es, ENERGIATAKARÉKOS ikerházat, amely ideális választás lehet családosok számára.2018-ban épült, tégla építésű, szigetelt. A házra telepített 8 kW-os napelemrendszernek köszönhetően a fenntartási költsége rendkívül alacsony.Három külön bejáratú szoba, tágas - nappali, fedett-teraszkapcsolattal elegendő teret biztosít a család minden tagja számára.Konyhája modern, gépiesített. Az ingatlan 432 m2-es sarki telken helyezkedik el. A gondozott kert automata öntözőrendszerrel felszerelt. Helyet kapott egy igazi relaxációs sziget, a pihenésre és feltöltődésre vágyók számára: benne egy FILAGÓRIA, amelyben SZAUNA és KÜLTÉRI KONYHA beépített grillel teszi még kényelmesebbé a mindennapokat és a baráti összejöveteleket.A garázs egy autó számára biztosít parkolási lehetőséget. Azonban a ház előtt, térkövezett részen 3-4 autó megállására van lehetőség.A közlekedési lehetőségek kiválóak, hiszen a város központja könnyen megközelíthető autóval és tömegközlekedéssel egyaránt.A Balla lakópark zöldövezeti jellegének köszönhetően a természet közelsége is garantált.Megtekintéssel és bővebb információval kapcsolatba hívjon, szívesen válaszolok.

 Hirdető adatai

Hirdető neve: Otthon Centrum
Kapcsolattartó: Aradi Andrea
Hirdető telefonszáma: +36 70 412 5466
Honlap: -