Pest megye, Dömsöd


ÚJ ÉPÍTÉSŰ, Nettó 64nm, 3 szobás, 357nm telekkel 

Ingatlan adatai

Irányár: 48 900 000 Ft
Típus: ház
Kategória: eladó
Alapterület: 64 m2
Fűtés: -
Állapota: új
Szobák száma: 3
Építés éve: -
Szintek száma: -
Telekterület: 357 m2
Kert mérete: 357 m2
Erkély mérete: 9 m2
Felszereltség: -
Parkolás: -
Kilátás: -
Egyéb extrák:  
-

Részletes leírás

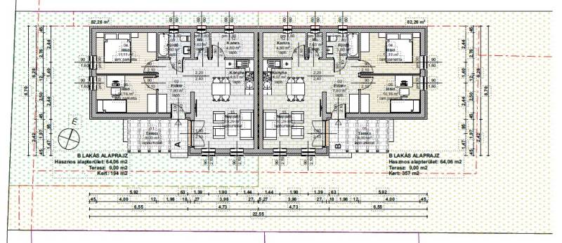
Megvételre kínálok Dömsödön ÚJ ÉPÍTÉSŰ, egyszintes,Otthon start 3% hitelre, Zöldhitelre, Csok+ra alkalmas ikerházat!!A LAKÁS Nettó 64,06 m2 Terasz: 9,00 m2 Kert: 194 m2 47,9M-Előtér 7,9nm-Amerikaikonyhás-Nappali 24,86nm-szoba 11,11nm-szoba 10,16nm-fürdő 3.6nm-wc 1.63nm-kamra 4,8nmB LAKÁS Nettó 64,06 m2 Terasz: 9,00 m2 Kert: 357 m2 48,9M-Előtér 7,9nm-Amerikaikonyhás-Nappali 24,86nm-szoba 11,11nm-szoba 10,16nm-fürdő 3.6nm-wc 1.63nm-kamra 4,8nmAz épület fűtéséről, NAPELEMMEL KOMBINÁLHATÓ, HŐSZIVATTYÚ gondoskodik, padlófűtéssel.Pár műszaki adat: -Leier 30-as téglából épül, tégla válaszfalakkal, -külső szigetelése Dryvit rendszerű -fa tetőszerkezet, -fa födém, -gipszkarton mennyezet, -Bramac cserépfedés -műanyag hőszigetelt nyílászárók -külső Dryvit rendszerű szigetelés -A belső burkolatok kiválaszthatóak.5 perc séta a távolsági buszmegálló.Bölcsöde, óvoda, iskola, Kultúr és Egészség-Ház, bevásárlási lehetőségek!!10 % foglalóval leköthetőVárható Átadás 2026 II.negyedév.Cégünk INGYENES, iroda és bank-független Hitel ügyintézéssel is rendelkezésére áll, nem csak nálunk vásárolt ingatlanokra!!Kérdés és-vagy időpont egyeztetés miatt hívjon bátran akár hétvégén is.Amennyiben nem tudom felvenni visszahívom.

 Hirdető adatai

Hirdető neve: Dream Credit Kft.
Kapcsolattartó: Zsuzsanna Hegedűs
Hirdető telefonszáma: +36707798880
Honlap: -