Budapest, XXII.kerület


 

Ingatlan adatai

Irányár: 189 900 000 Ft
Típus: ház
Kategória: eladó
Alapterület: 130 m2
Fűtés: -
Állapota: új
Szobák száma: 5
Építés éve: 2025
Szintek száma: -
Telekterület: 500 m2
Kert mérete: 500 m2
Erkély mérete: 500 m2
Felszereltség: -
Parkolás: -
Kilátás: kertre néző
Egyéb extrák:  
-

Részletes leírás

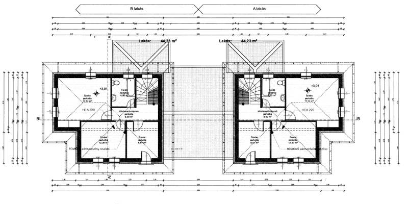
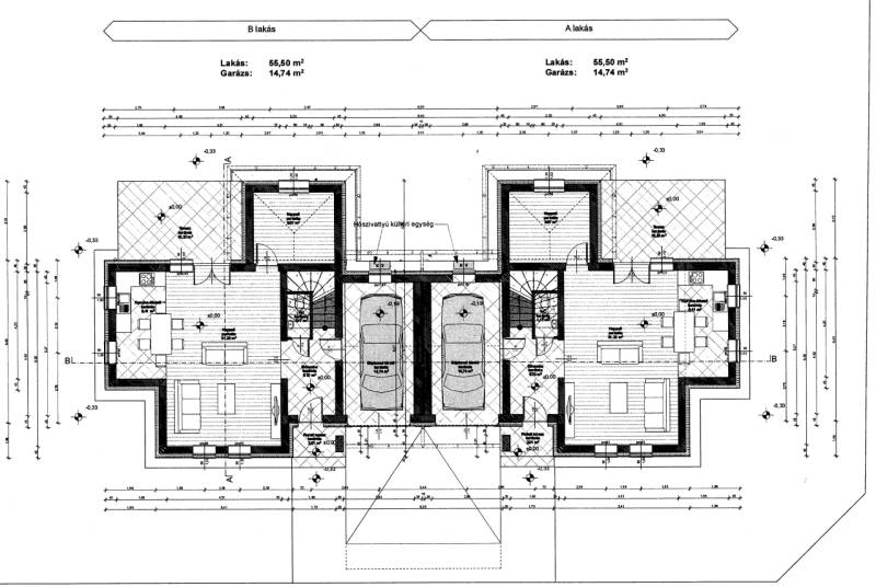
LEGYEN ÖN az ELSŐ, még TUD VÁLASZTANI a GARÁZZSAL ÉRINTKEZŐ, MOST ÉPÜLŐ \"A\" és \"B\" LAKÓHÁZAK közül!XXII. kerület Óhegy csendes kertvárosias környezetében, összesen 1000 m2-es telken 2 db, 130 m2-es 5 szobás, fürdőszobás nagy teraszos, garázzsal rendelkező \"A\" és \"B\" jelű házat kínálunk megvételre.Mindkét ház ALAPRAJZA, TELEK MÉRETE, KIVITELEZÉSE AZONOS !A megvételre kínált: \"A\" és \"B\" jelű ingatlan KULCSRAKÉSZ ÁRA: 189,9 millió FtAz ingatlanok saját 500 m2-es szeparált telek résszel, egyállásos garázzsal, térkövezett kocsibeállóval, külön mérőórákkal rendelkeznek.A két lakás két épület tömbben helyezkedik el.Az épületeket két garázs köti össze.Helyiségei:FÖLDSZINTEN: előszoba (5,7 m2), WC kézmosóval, nappali (31,25 m2), konyha-étkező (8,40 m2), vendégszoba (8 m2).EMELETEN közlekedő(9,3 m2), fürdőszoba(5 m2), 3 hálószoba (17,7 m2, 12,2 m2 és 8,5 m2 méretűek.)A MÉRETEKET, ELRENDEZÉST LÁSD AZ ALAPRAJZOKON !MŰSZAKI TARTALOM:-Porotherm 30-as falazat,15 cm külső homlokzati szigetelés-25 cm tetőszigetelés,12 cm lábazat xps szigetelés-két szint között E gerendás vasbeton födém-Leier beton cserép,csatorna rendszerrel-3 rétegű üvegezéssel ellátott, műanyag nyílászárók-elektromos alumínium redőnyök, szúnyoghálóval-minden helyiségben padló fűtés, helyiségenként szabályozható osztógyűrűvel-Hőszivattyú 10 KWh-Vízmelegítő hibrid 100 L-Villamos energia :1x32 A, 1x25 A H tarifás villanyóraÁtadás előtt, tereprendezésre kerül sor, építési törmelék elszállítása,talaj kiegyenlítés.TERVEZETT ÁTADÁS IDŐPONTJA : 2026. I. negyedévA HÁZAK ÖNÁLLÓ MÉRŐÓRÁKKAL, HASZNÁLATBAVÉTELI ENGEDÉLLYEL, TÁRSASHÁZ ALAPÍTÓ OKIRATTAL és H-TARIFÁS VILLANYÓRÁVAL kerülnek átadásra.A környék lokációja jó, közelben iskola, óvoda, orvosi rendelő, bevásárlási lehetőség található.Az ingatlan megtekintése előre egyeztetett időpontban lehetséges.VÁROM HÍVÁSÁT, TOVÁBBI KÉRDÉSEIVEL kapcsolatosan JELENTKEZÉSÉT!(G.I.)

 Hirdető adatai

Hirdető neve: GDN Ingatlanhálózat
Kapcsolattartó: Nyegrutz Tibor
Hirdető telefonszáma: +36-30-250-4987
Honlap: -