Hajdú-Bihar megye, Hajdúnánás


 

Ingatlan adatai

Irányár: 235 000 000 Ft
Típus: iroda
Kategória: eladó
Alapterület: 1 551 m2
Fűtés: -
Állapota: -
Szobák száma: -
Építés éve: 1995
Szintek száma: -
Telekterület: -
Kert mérete: -
Erkély mérete: -
Felszereltség: -
Parkolás: -
Kilátás: -
Egyéb extrák:  
-

Részletes leírás

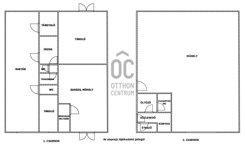
Hajdúnánás ipari övezetében, 3769 m²-es telken kínálunk eladásra két darab, egyenként 775,5 m² alapterületű ipari csarnokot. A csarnokok külön-külön is megvásárolhatók, így kiváló lehetőséget nyújtanak befektetők és vállalkozások számára egyaránt.1. számú csarnok:- Mérete: 16,5 m × 47 m (775,5 m²)- Belmagasság: 3–5,5 m- Vasszerkezetű csarnok szendvicspanelekkel- 10 cm szigetelés az oldalfalakon, mennyezeten és az aljzatbetonban- Ipari simított betonpadló- Palatető fedés- Műanyag nyílászárók, riasztórendszer- Szekcionált, elektromos ipari kapu- Helyiségek: iroda, tárgyaló, szociális blokkok, zuhanyzó, teakonyha, raktár, műhely, tároló- Elektromos hálózat: 3×32 A- Fűtés: irodában 2 db 3,6 kW-os klíma- Vízellátás: 65 m mély fúrt kút, házi vízszűrő rendszerrel2. számú csarnok:- Mérete: 16,5 m × 47 m (775,5 m²)- Belmagasság: 3–5,5 m- Vasszerkezetű csarnok szendvicspanelekkel- 10 cm szigetelés az oldalfalakon, mennyezeten és az aljzatbetonban- Ipari simított betonpadló- Riasztórendszer, műanyag nyílászárók- Szekcionált, elektromos ipari kapu- Helyiségek: szociális blokkok, zuhanyzó, teakonyha, műhely- Tetőfedés: részben palatető, részben lemeztető- 50 kW-os napelemrendszer az energiaellátás biztosítására- Elektromos hálózat: 3×80 A- Vízellátás: 65 m mély fúrt kút, házi vízszűrő rendszerrelTovábbi jellemzők:- a csarnokok teherautóval teljes körbejárhatók- teljesen körbekerített terület- a csarnokok külön bejáratokkal és kapukkal rendelkeznek- 10 m³-es szennyvízakna tartozik az ingatlanhozUdvar: részben betonozott, részben útalappal ellátott.Az ingatlan számos hasznosítási lehetőséget kínál: ipari vagy mezőgazdasági telephely, raktár, tároló, műhely, üzem kialakítására is ideális.Amennyiben az ingatlan felkeltette érdeklődését, kérem, keressen bizalommal!

 Hirdető adatai

Hirdető neve: Otthon Centrum
Kapcsolattartó: Varga Ágnes
Hirdető telefonszáma: +36 70 469 3906
Honlap: -