Pest megye, Mogyoród


 

Ingatlan adatai

Irányár: 95 500 000 Ft
Típus: lakás (újépítésű)
Kategória: eladó
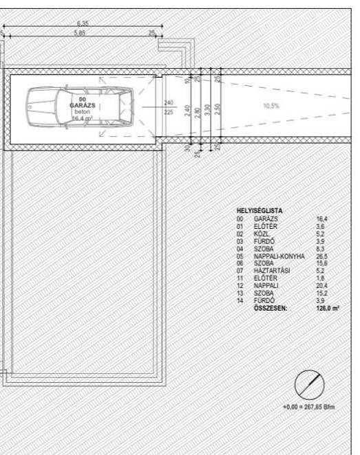
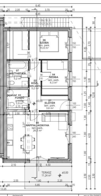
Alapterület: 68 m2
Fűtés: -
Állapota: új
Szobák száma: 4
Építés éve: 2025
Szintek száma: -
Telekterület: -
Kert mérete: -
Erkély mérete: 11 m2
Felszereltség: -
Parkolás: -
Kilátás: kertre néző
Egyéb extrák:  
-

Részletes leírás

Mogyoród csendes kertvárosi részén eladó egy új építésű ikerház egyik felének födszinti lakása,mely kiváló választás lehet családok számára. 68,3 nm-es lakótérrel, egy 11,24 nm-es terasszal,egy 16,4 nm-es garázzsal és egy 400 nm-es kerttel biztosítja a családi életet. Elrendezését tekintve igazán jól átgondolt, 1 fürdőszoba, 2 különnyíló szoba, 1 háztartási helyiség és egy nagy amerikai konyhás nappali teszi kényelmessé. Budapest könnyen megközelíthető tömegközlekedéssel és autóval egyaránt, mivel a Gödöllő-i hév (Szentjakab megálló) pár perc sétára található, illetve autóval az M3-as autópálya szintén gyorsan elérhető. A fűtés korszerű hőszivattyús berendezéssel van megoldva, illetve padlófűtéssel, és mivel H tarifás így mindezt költséghatékonyan a téli időszakban is.Átadás várhatóan 2026 decemberében lesz,így még könnyen átformálható a saját ízlésének megfelelően, ha időben lecsap erre a lehetőségre!Egyedi igényekre szabott lakáshitelekkel állunk rendelkezésére. Bankfüggetlen hitelcentrumunk az országban elérhető összes bank és hitelintézet ajánlatát versenyezteti az Ön számára díjmentesen. Munkatársaink nagy szakmai tapasztalattal várják Önt az előre egyeztetett időpontban.Bővebb információért és a megtekintéssel kapcsolatban hívjon bizalommal!

 Hirdető adatai

Hirdető neve: Otthon Centrum
Kapcsolattartó: Nyilas Szabina
Hirdető telefonszáma: +36 70 469 3821
Honlap: -