Részletes leírás
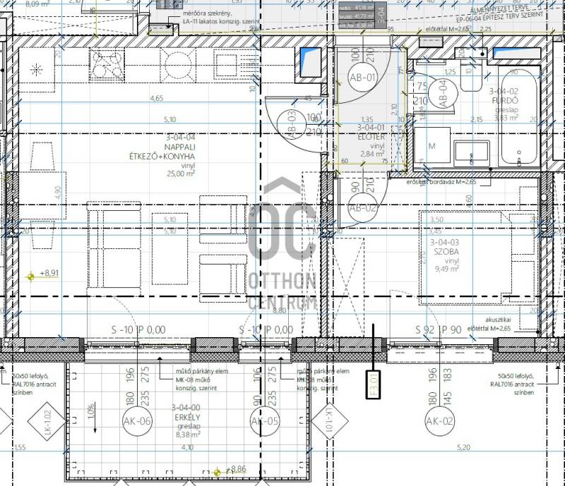
Projekt bemutatásaProjekt áttekintésKiváló befektetési és lakhatási lehetőség Budapesten, a XIII. kerület frekventált, de nyugodt részén. Itt épül egy modern 31 lakásos, pince + földszint + 4 emelet kialakítású, elegáns, liftes társasház!Műszaki szempontból is a legmodernebb megoldásokat alkalmazzák az építés során, hiszen hőszivattyús fűtés és melegvíz ellátása van a lakásoknak, amihez párosulnak a három rétegű ablakok, és a megfelelő homlokzati szigetelés. Ezáltal a lakások fenntartási költsége nagyon kedvező lesz!A földszinti lakások egy része kertkapcsolattal rendelkezik, amely ideális választás lehet azoknak a vevőknek, akik kisállattal rendelkeznek vagy zöld környezetre vágynakKiemelt figyelmet érdemel a lakóépület legfelső, negyedik emelete, ahol az utcai és udvari homlokzati falak visszahúzása miatt:Tágas, napfényes teraszok kerülnek kialakításra.Penthouse jellegű lakások, melyek ideálisak a különleges hangulatot és kilátást keresők számára.Lehetőség van garázs beálló hely vásárlására a mélygarázsban, illetve tároló vásárlására is. Ha akezdeti szakaszban vásárol, akkor még lehetősége van a saját ízlése szerint kiválasztani a burkolatokat, ajtókat, szanitereket stb. ElhelyezkedésA Gyöngyösi utca kiváló infrastruktúrával rendelkezik, a közelben minden megtalálható, ami a kényelmes élethez szükséges (vásárlási lehetőségek, közlekedés, szolgáltatások).Ne maradjon le! Válassza ki álmai otthonát még az építkezés kezdeti szakaszában!További információkért keressen minket bizalommal!