Budapest, III.kerület


Csillaghegy 

Ingatlan adatai

Irányár: 209 900 000 Ft
Típus: ház
Kategória: eladó
Alapterület: 104 m2
Fűtés: egyéb
Állapota: új
Szobák száma: 1+2
Építés éve: 2026
Szintek száma: -
Telekterület: 270 m2
Kert mérete: 270 m2
Erkély mérete: -
Felszereltség: -
Parkolás: -
Kilátás: kertre néző
Egyéb extrák:  
-

Részletes leírás

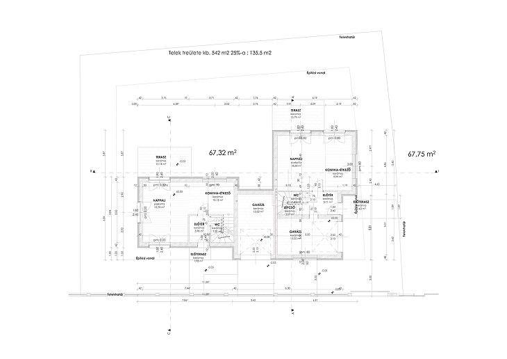
Csillaghegy DUNAFELŐLI OLDALÁN eladó egy újépítésű ikerházfél!Az építkezés 2026 márciusában kezdődik, a tervezett átadás 2026 szeptemberében várható. Az ingatlan nettó 104 négyzetméter lakóterülettel rendelkezik, amely két szinten kerül kialakításra. A ház elosztása egy tágas, világos amerikai konyhás nappaliból, egy fürdőszobából és három külön nyíló szobából áll, így ideális választás családok számára is. A házhoz tartozik egy 15 négyzetméteres garázs, amely kényelmes és biztonságos parkolást biztosít. A 270 négyzetméteres telek kellemes méretű kert kialakítását teszi lehetővé, pihenéshez vagy szabadtéri programokhoz.Környékről:Közelben minden olyan szolgálatás megtalálható amire szüksége lehet a mindennapokban (kisebb élelmiszer boltok, piac, éttermek, gyógyszertárak). Gyerekes családoknak nagyon ideális hiszen játszóterek, Óvoda, Iskola, Egyetem van a közelben.Tömegközlekedés szempontjából is tökéletes hiszen pár perc sétára található számos buszmegálló, illetve a H5-ös hév.Ha pedig kikapcsolódásra vágyik pár perc sétatávra elérhető a Duna part, ahol számos lehetőség van kikapcsolódni, sétálni, szórakozniPARKOLÁS A HÁZ ELŐTT ÉS KÖRNYÉKÉN INGYENES.FINANSZÍROZÁS:Banki finanszírozással is megvásárolható, melyben irodánk ingyenes tanácsadással áll rendelkezésükre!VEVŐINK RÉSZÉRE A KÖZVETÍTÉS DÍJTALAN!A beépített bútorzat a vételár részét képezi.A hirdetésben szereplő adatok tájékoztató jellegűek.

 Hirdető adatai

Hirdető neve: MPD Hungary Kft.
Kapcsolattartó: Monte Stella Kft.
Hirdető telefonszáma: +36205034414
Honlap: -