Budapest, IX.kerület


 

Ingatlan adatai

Irányár: 104 900 000 Ft
Típus: lakás (tégla)
Kategória: eladó
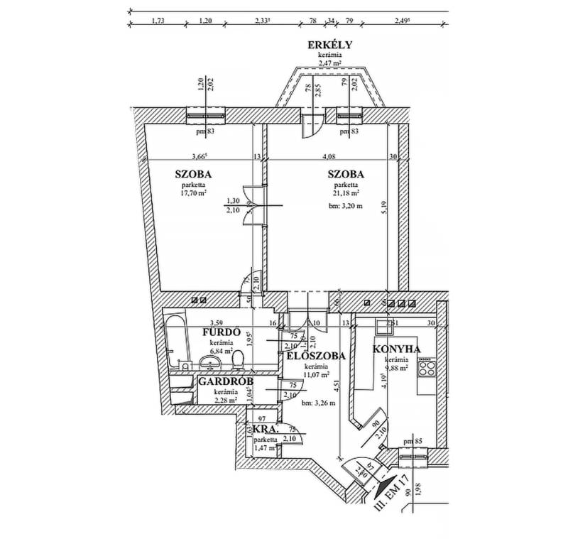
Alapterület: 69 m2
Fűtés: gáz (cirko)
Állapota: -
Szobák száma: 2
Építés éve: 1950
Szintek száma: 3
Telekterület: -
Kert mérete: -
Erkély mérete: 3 m2
Felszereltség: -
Parkolás: -
Kilátás: utcai
Egyéb extrák:  
-

Részletes leírás

Ferenc tér mellett eladó egy NAPSÜTÉSES, szép állapotú, 69 nm-es, 2 szobás , 3-ik emeleti tégla építésű ingatlan!A társasház KIVÁLÓ állapotban van, műszakilag, és esztétikailag is teljesen FELÚJÍTOTT, Lift nincs.Közös költsége: 15.000 Ft van. Fűtését , és melegvizét cirkó-kazán biztosítja.Egy tisztasági festés után költözhető!A lakás másik nagy előnye, hogy tartozik hozzá egy külön tároló (6 nm) ami benne van az árban.Mivel a konyha külön helyiségben található, könnyedén 3 szobássá alakítható a lakás a szuper elosztás miatt!Jöjjön el, és nézze meg.Hivatkozási azonosító:ID: 391677

 Hirdető adatai

Hirdető neve: GDN Ingatlanhálózat
Kapcsolattartó: Füredi Felícia
Hirdető telefonszáma: +36-30-828-2621
Honlap: -