Pest megye, Vác


 

Ingatlan adatai

Irányár: 78 000 000 Ft
Típus: lakás (tégla)
Kategória: eladó
Alapterület: 82 m2
Fűtés: gáz (konvektor)
Állapota: felújított
Szobák száma: 3
Építés éve: 1986
Szintek száma: 1
Telekterület: -
Kert mérete: -
Erkély mérete: 5 m2
Felszereltség: -
Parkolás: -
Kilátás: utcai
Egyéb extrák:  
-

Részletes leírás

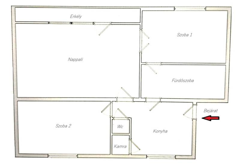
Eladó Vácon, Deákváron lévő, 82 m²-es, tágas és világos lakás, kiváló elrendezéssel!Eladásra kínálunk egy 82 négyzetméteres, kényelmes életteret biztosító lakást, amely ideális választás lehet családoknak, fiatal pároknak, illetve befektetők számára egyaránt. Az ingatlan jól átgondolt elrendezésének köszönhetően a helyiségek tágasak, élhetőek és praktikusan használhatóak.Az ingatlan megfelel az államilag támogatott lakáshiteleknek, így az Otthon Start Program (\"3%-os hitel\") és a CSOK Plusz hitelprogram is igénybe vehető a vásárlásnál.A lakás több szobával rendelkezik, melyek külön nyílóak, így biztosítják a nyugodt pihenést és a zavartalan mindennapokat. A nagy méretű ablakoknak köszönhetően az ingatlan egész nap világos, kellemes, barátságos hangulatot áraszt. A konyha kényelmes méretű, étkezős kialakítású, míg a fürdőszoba és a mellékhelyiség külön elrendezésű.Az ingatlanban a nyílászárókat műanyagra cserélték és a villamos hálózat is teljes felújításra került. A fűtést gázkonvektor és hűtő-fűtő klímaberendezések biztosítják, melyek nyáron az ingatlant hűteni is tudják. A melegvíz ellátást villanybojler biztosítja. A társasház rendezett, jó lakóközösséggel rendelkezik. A környék infrastruktúrája kiváló: tömegközlekedési lehetőségek, bevásárlóközpontok, boltok, iskola, óvoda, orvosi rendelő rövid sétatávolságon belül elérhetők. A környék csendes, mégis minden fontos szolgáltatás könnyen hozzáférhető.Főbb jellemzők:• Alapterület: 82 m²• Szobák száma: 3• Konyha: 8,7 m2• Fürdőszoba: 7,6 m• WC: külön • Fűtés: gázkonvektor és hűtő-fűtő klímák• Emelet: 1.• Parkolás: ingyenesen az utcábanEz a lakás remek lehetőség saját otthonnak vagy befektetésnek egyaránt.Ne maradjon le róla, hívjon bizalommal, és tekintse meg személyesen!További információért forduljon Hozzám bizalommal!Amivel segítjük az Ön ingatlanvásárlását:-ingyenes, bankfüggetlen hitelügyintézés (CSOK és Babaváró ügyintézése is.)-jogi háttér-földhivatali ügyintézés-energetikai tanúsítvány elkészítése-biztosítás

 Hirdető adatai

Hirdető neve: GDN Ingatlanhálózat
Kapcsolattartó: Bayer Zoltán
Hirdető telefonszáma: +36-70-422-2871
Honlap: -