Pest megye, Gyömrő


 

Ingatlan adatai

Irányár: 99 000 000 Ft
Típus: ház
Kategória: eladó
Alapterület: 125 m2
Fűtés: gáz (cirko)
Állapota: -
Szobák száma: 4
Építés éve: 2003
Szintek száma: -
Telekterület: 1 173 m2
Kert mérete: 1 173 m2
Erkély mérete: 18 m2
Felszereltség: -
Parkolás: -
Kilátás: -
Egyéb extrák:  
-

Részletes leírás

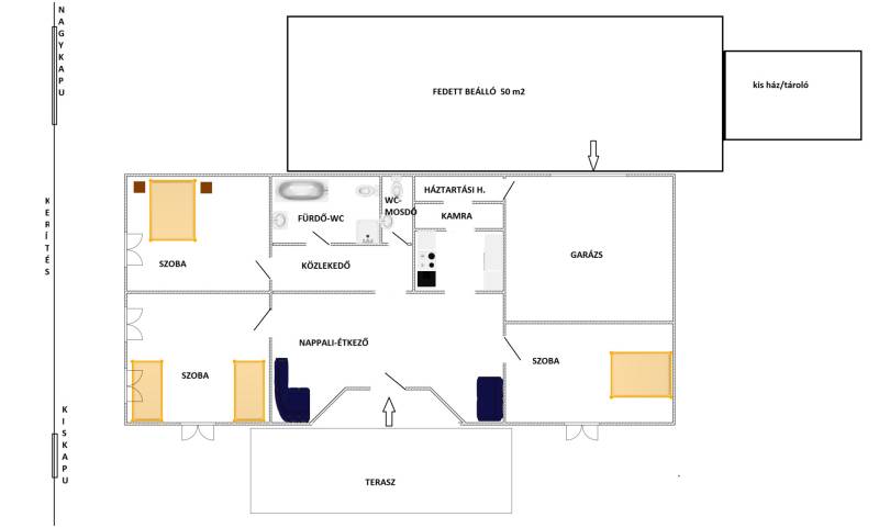
Gyömrő egyik legjobb helyén eladó egy földszintes, nappali plusz 3 szobás, dupla garázsos családi ház nagy telekkel.Az ingatlan: egy csaknem 1200 nm-es, összközműves, parkosított telek és a rajta álló 142 nm -es, cseréptetős ház.(és még sokminden más is)A telken álló, többségében örökzöld fákat és bokrokat, még az első, kertészmérnök tulajdonos ültette.. -fúrt kút is rendelkezésre áll!A főépületen kívül, van egy nettó 15 nm -es kis téglaház is amely jelenleg tárolóként működik, ezenkívül egy kerti grillsütőhely szaletli is.A falazat 40 cm-es ytong tégla plusz 5 cm dryvit szigetelés, a fűtés és a melegvíz előállítása Vailant gáz-cirkó kazánról történik, mindenhol van padlófűtés, sőt a szobákban még radiátor is, a nyílászárók közül az ablakok hőszigetelt üvegezésűek és a ház jellegéhez megfelelően fából készültek, a hűtéshez minden helyiségben légkondcionáló került felszerelésre.Az utcáról egy távirányítású kapun juthatunk be egy térburkolattal ellátott 50 nm-es!!, polkarbonát tetővel fedett részre, innen megközelíthető egy 10 nm-es pince és ugyancsak itt tudunk behajtani a kétállásos, fűtött, 26 nm-es garázsba is.(amelyből pedig bevásárlást követően praktikusan megközelíthető a ház kamrája, illetve konyhája)A lakás jó tájolású, kompakt, világos, energetikailag is jó, 3 nagy méretű szoba (16,18 és 19 nm)konyha, fürdőszoba-wc, külön wc és mosdó, közlekedő, kamra, háztartási helyiségekből áll.Az ingatlan az autópályák és Budapest közelségében, jó megközelíthető helyen fekszik, a városon belüli megközelíthetősége akár gyalogosan is kiváló.A környék kertvárosi, csendes és zöld, a kert hatalmas, az ingatlan biztonságát speciális risztók és érzékelők is fokozzák.Gyalogosan is gyorsan, 10-12 percen belül elérhető: Óvoda, Iskola, Gimnázium, Művelődési ház, Vasút állomás, Orvosi rendelő, Tófürdő, Városháza, Szabadság-Tér.

 Hirdető adatai

Hirdető neve: Otthon Centrum
Kapcsolattartó: Fuchs Róbert
Hirdető telefonszáma: +36 70 461 9646
Honlap: -