Pest megye, Tápiószecső


 

Ingatlan adatai

Irányár: 59 900 000 Ft
Típus: ház
Kategória: eladó
Alapterület: 96 m2
Fűtés: -
Állapota: új
Szobák száma: 4
Építés éve: 2024
Szintek száma: -
Telekterület: 1 240 m2
Kert mérete: 1 240 m2
Erkély mérete: 19 m2
Felszereltség: -
Parkolás: -
Kilátás: udvari
Egyéb extrák:  
-

Részletes leírás

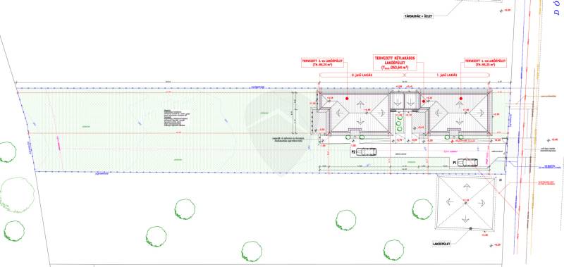
Új építésű, modern lakóingatlanokat kínálunk eladásra Pest megye egyik legszebb településén, Tápiószecsőn.Az ingatlan a Dózsa György utcában található, csendes, nyugodt környezetben, ahol igazán élvezheti az életet. Az otthonok 95 négyzetméteres alapterülettel rendelkeznek, mely négy szobát és egy fürdőszobát foglal magában. A 19 négyzetméteres teraszról gyönyörű panoráma tárul elénk. A fűtési rendszer hőszivattyúval működik, így az energiaköltségek rendkívül alacsonyak.Az első és hátsó ingatlanok nettó alapterülete 95,25 m².Az utcafronti ingatlan telekterülete: 640 m²A hátsó ingatlan telekterülete: 1240 m²Árak:Utcafronti ingatlan: 59,9 millió forintHátsó ingatlan: 64,9 millió forintMűszaki leírásP30N+F téglafal10 cm homlokzati szigetelés25 cm födém szigetelésHat légkamrás, háromrétegű műanyag thermo nyílászárókAntracit színű cserépElektromos kapu előkészítéseA burkolatok és a beltéri ajtók a vállalkozó által biztosított összeghatárig választhatók:Hidegburkolat: 3.000 Ft/m²Melegburkolat: 3.000 Ft/m²Beltéri ajtók: 30.000 Ft/dbFürdőkád: 50.000 FtCsaptelepek: 15.000 Ft/dbHa kérdése merülne fel az ingatlannal kapcsolatban, vagy további részletek érdeklik, bátran keressen minket!AZ INGATLAN CSOK+ KÉPES!Használja ki a 3%-os első lakásvásárlást segítő hitel lehetőségét!Várható befejezés: 2026 elejeIntor Ingatlan – Otthont biztonságban!Irodánk végigkíséri Önt az értékesítés teljes folyamatán – az első lépésektől egészen a birtokbaadásig. Amennyiben valamelyik ingatlanunkat jelenlegi otthona értékesítését követően kívánja megvásárolni, vagy megbízható, teljes körű ügyintézést nyújtó irodával szeretne együttműködni megfizethető áron, forduljon hozzánk bizalommal!

 Hirdető adatai

Hirdető neve: Intor Ingatlan Powered By RH
Kapcsolattartó: Kollár Ábel Gergő
Hirdető telefonszáma: +36 70 412 5808
Honlap: -