Somogy megye, Balatonföldvár


 

Ingatlan adatai

Irányár: 114 900 000 Ft
Típus: ház
Kategória: eladó
Alapterület: 206 m2
Fűtés: gáz (konvektor)
Állapota: -
Szobák száma: 6
Építés éve: 1980
Szintek száma: -
Telekterület: 658 m2
Kert mérete: 658 m2
Erkély mérete: 9 m2
Felszereltség: -
Parkolás: -
Kilátás: -
Egyéb extrák:  
-

Részletes leírás

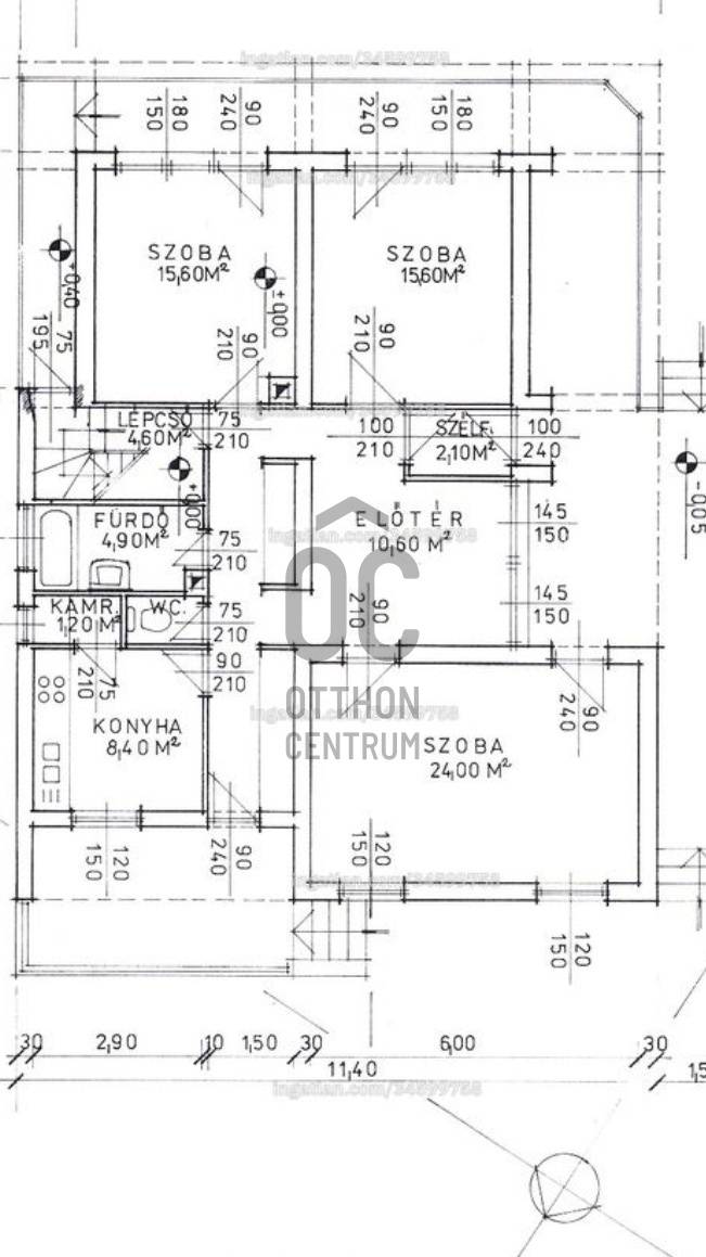
Balatonföldváron eladó háromszintes családi ház külön bejáratú tetőtéri lakrésszel – ideális több generáció számára vagy befektetésnek Balatonföldvár egyik nyugodt, zöldövezeti utcájában kínáljuk megvételre ezt a 221 m²-es, háromszintes családi házat, amely egy 658 m²-es, rendezett telken helyezkedik el. Az ingatlan kiváló választás állandó lakhatásra, nyaralónak, több generáció együttélésére, valamint befektetési célra is, mivel a tetőtéri lakrész külön bejárattal rendelkezik. Főbb jellemzők:Lakótér összesen: 221 m²Telek: 658 m²Szobák száma: 6Fürdőszobák: 2 + 2 külön WCKülön bejáratú tetőtéri lakrészGarázs: 1 autó részéreÁllapot: gondozott, jól alakíthatóAz épület 1980-ban épült egyedi tervek alapján,1984-ben tetőtér-beépítéssel bővítették,2004-ben új tetőszerkezetet kapott. Elrendezés:Pince (38,75 m²): garázs, műhely, tárolókFöldszint (112,6 m²):nappali, 2 hálószoba, étkező, konyha, fürdőszoba, külön WC, kamra, közlekedő, hátsó teraszTetőtér (70,6 m²):közlekedő–társalgó, 3 hálószoba, konyha, fürdőszoba, külön WC, 2 erkély, külön utcai bejárattal is megközelíthető, teljesen önálló lakrészként használható Műszaki tartalom:Fűtés: gázkonvektor + elektromos kiegészítő fűtésMeleg víz: villanybojler3 fázis rendelkezésre állÖsszközműves, tehermentesAzonnal birtokba vehetőKültér:Térkövezett autóbeállóKülön utcai kapu a garázshozKert gyümölcsfákkalTerasz és erkélyekElhelyezkedés:Balatonföldvár biztonságos, családbarát település, kiváló közlekedéssel. A Balaton, strand, kikötő, vasútállomás, boltok és éttermek rövid időn belül elérhetők.Külön bejáratú tetőtér = kiadható lakrész, vendégház vagy önálló generációs tér.Ez az ingatlan ritka lehetőség a Balaton déli partján.

 Hirdető adatai

Hirdető neve: Otthon Centrum
Kapcsolattartó: Füstösné Vizvári Mónika
Hirdető telefonszáma: +36 70 716 9321
Honlap: -