Tolna megye, Szekszárd


 

Ingatlan adatai

Irányár: 127 000 Ft/hó
Típus: iroda
Kategória: kiadó
Alapterület: 48 m2
Fűtés: -
Állapota: -
Szobák száma: -
Építés éve: 1990
Szintek száma: -
Telekterület: -
Kert mérete: -
Erkély mérete: -
Felszereltség: -
Parkolás: -
Kilátás: -
Egyéb extrák:  
-

Részletes leírás

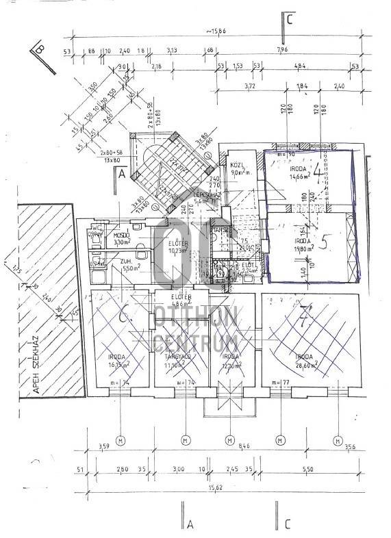
Kiadó irodák a város szívében!Szekszárd belvárosában, az Arany János utcában különböző méretű irodák kiadók.A hirdetésben szereplő, I. emeleten található 2db iroda más, egyéb hasznosításra is alkalmas, ezek az irodák egybe nyithatóak, alapterületük 48 m2.A helyiség oktató teremként, irodaként is funkcionálhat.Az alaprajzon a hirdetett iroda a 4-es és 5-ös számú egyben.Az irodákhoz melegítő konyha, mosdó és toalett tartozik.Fűtése távfűtés, amelyet a rezsi tartalmaz.Rezsije 10.000 forint havonta.Az iroda klimatizált, ablakai hőszigetelt műanyagok, a hátsó parkolóra néznek, így csendes.Energetikai tanúsítvány elkészítése folyamatban.A bérlő autóját az irodaépület mögötti közterületi parkolóban helyezheti el.Amennyiben a város forgalmas részén szeretné megnyitni új irodáját, oktatótermét, kérem keressen, nézzük meg együtt ezt a nagyszerű lehetőséget.Belváros, kiadó iroda, OC UZ018286

 Hirdető adatai

Hirdető neve: Otthon Centrum
Kapcsolattartó: Dániel Lilla Anna
Hirdető telefonszáma: +36 70 388 6296
Honlap: -