Budapest, XVII.kerület


 

Ingatlan adatai

Irányár: 89 900 000 Ft
Típus: lakás (tégla)
Kategória: eladó
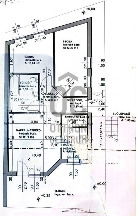
Alapterület: 60 m2
Fűtés: gáz (cirko)
Állapota: -
Szobák száma: 3
Építés éve: 2006
Szintek száma: -
Telekterület: -
Kert mérete: -
Erkély mérete: 10 m2
Felszereltség: -
Parkolás: -
Kilátás: udvari
Egyéb extrák:  
-

Részletes leírás

Eladásra kínálok egy minden igényt kielégítő, földszinti, 60 m²-es, kertkapcsolatos rezidenciát Rákoshegy legkedveltebb részén, a Helikopter lakópark egyik csendes, átmenő forgalomtól mentes mellékutcájában. Ez az ingatlan tökéletes ötvözete a társasházi kényelemnek és a privát kertes ház élményének.Miért ez az ingatlan a legjobb választás a környéken?Privát szféra és nyugalom: A mindössze 6 lakásos, rendezett lakóközösségű társasház legbelső lakása, így a zavartalan csend garantált.Saját oázis: A lakáshoz egy 22 m²-es, részben fedett, árnyékolóval felszerelt terasz és egy 35 m²-es, kizárólagos használatú hátsókert tartozik. Ideális helyszín reggeli kávézáshoz, esti borozáshoz vagy családi sütögetéshez.Benapozott terek: A Dél-Keleti fekvésnek köszönhetően a lakás egész nap fényárban úszik, ami pozitív hatással van az életminőségre és a rezsiköltségekre is.Műszaki tartalom és felszereltség (Ami az értéket növeli):Korszerű gépészet: Kombi cirkó fűtés egyedi mérőórákkal – csak azt fizeti, amit elfogyaszt!Komfort extra: Frissen felszerelt hűtő-fűtő klíma gondoskodik a tökéletes hőmérsékletről minden évszakban.Minőségi nyílászárók: 5 kamrás, UV-stabil műanyag ablakok redőnnyel és szúnyoghálóval a maximális hang- és hőszigetelésért.Biztonságos parkolás: A vételár részét nem képezi a telken belüli, frissen térkövezett felszíni beálló, mely távirányítós kapun keresztül érhető el. Ára: 7.000.000 FT, amely kötelezően megvásárolandó a lakáshoz.Praktikum és design:A belső elosztás kiváló: tágas amerikai konyhás nappali, két külön nyíló hálószoba és egy kényelmes, sarokkádas fürdőszoba alkotja az otthon egységét. Az ingatlan vételára tartalmazza:A beépített gépekkel felszerelt modern konyhabútort.Az egyedi világítással ellátott, tágas gardróbszekrényt.A teraszon elhelyezett praktikus szerszámos szekrényt.Lokáció – Minden egy karnyújtásnyira:A lakópark infrastruktúrája egyedülálló: óvoda, üzletek, cukrászda és játszótér sétatávolságra. A természet szerelmeseinek a Keresztúri parkerdő (5 perc séta) kínál futópályát, tanösvényt és kikapcsolódási lehetőséget. Közlekedés: Kiváló összeköttetés az Örs vezér tere és Rákoskeresztúr központja felé (buszmegálló 2 percre).Az ingatlan per- és tehermentes, azonnal gördülékenyen megvásárolható.Ez a lakás nem csupán egy ingatlan, hanem egy életforma. Olyan igényes új tulajdonost keresünk, aki értékeli a minőséget és a nyugalmat.Ne maradjon le erről a ritka lehetőségről! Várom megtisztelő hívását a hét bármely napján!

 Hirdető adatai

Hirdető neve: Otthon Centrum
Kapcsolattartó: Kartali Gergely
Hirdető telefonszáma: +36 70 716 8161
Honlap: -