Hajdú-Bihar megye, Debrecen


 

Ingatlan adatai

Irányár: 139 900 000 Ft
Típus: ház
Kategória: eladó
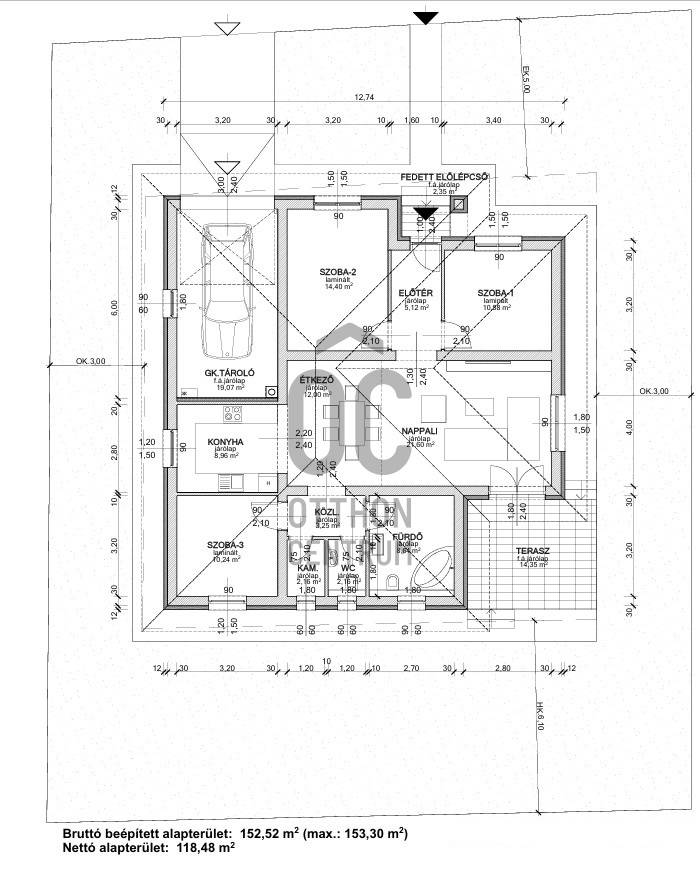
Alapterület: 120 m2
Fűtés: gáz (cirko)
Állapota: új
Szobák száma: 4
Építés éve: 2026
Szintek száma: -
Telekterület: 510 m2
Kert mérete: 510 m2
Erkély mérete: 14 m2
Felszereltség: -
Parkolás: -
Kilátás: -
Egyéb extrák:  
-

Részletes leírás

Debrecen Kerekestelep városrészében, csendes, kövezett zsákutcában kínálunk megvételre egy 3 különnyíló szoba + amerikai konyha-nappalis önálló családi házat, 510 m²-es telken, 120 m² hasznos alapterülettel.Az ingatlan modern műszaki tartalommal és kiváló hőszigeteléssel készül, energiatakarékos megoldásokkal.Műszaki jellemzők:-Porotherm 30 tégla-Padlófűtés minden helyiségben-A szobákban padlófűtés mellett radiátor is-Gáz-cirkó fűtés-3 rétegű hőszigetelt nyílászárók-12 cm grafitos külső homlokzati szigetelés-12 cm padlószigetelés-30 cm födémszigetelés-Elektromos garázskapu-Riasztórendszer vezetékelése előkészítveAz ár tartalmazza:-2 db klímaberendezés-Nemesvakolattal ellátott homlokzat-Térkövezett udvari felületek-Burkolt teraszAz ingatlan várhatóan 2026 júniusában készül el, így ideális választás azok számára, akik új építésű, korszerű otthont keresnek nyugodt környezetben.Bővebb információért vagy megtekintésért keressen bátran!

 Hirdető adatai

Hirdető neve: Otthon Centrum
Kapcsolattartó: Vida Cintia
Hirdető telefonszáma: +36 70 716 8781
Honlap: -