Hajdú-Bihar megye, Debrecen


 

Ingatlan adatai

Irányár: 215 000 000 Ft
Típus: iroda
Kategória: eladó
Alapterület: 255 m2
Fűtés: -
Állapota: -
Szobák száma: -
Építés éve: 2025
Szintek száma: -
Telekterület: -
Kert mérete: -
Erkély mérete: -
Felszereltség: -
Parkolás: -
Kilátás: -
Egyéb extrák:  
-

Részletes leírás

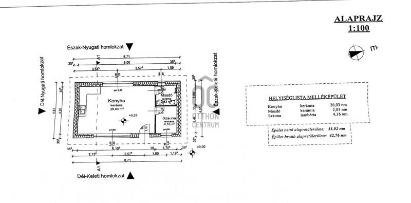
Debrecen egyik fejlődő ipari részén a Gáspár György kertben eladó 26710 nm-es iparivá minősíthető terület. Jellemzők:- 175 nm-es szerkezetkész csarnok,- 35 nm-es iroda,- 45 nm-es műhely/garázs,- ipari áram 3X32A,- vezetékes víz,- fúrott kút,- a telek előtt internet optikai kábel,- 53 méteres utcafronttal.Jelenleg egy félbe maradt építéssel együtt eladó, aminek már a befejezése az új tulajdonos feladata lesz. Az ingatlanról teljes körű videó felvétel készült, a megtekintése érdekében weboldalunkon keresse a UZ019362 regisztrációs számon vagy keressen telefonon közvetlenül.Kedves Üzleti Vállalkozók! Ha Önöknek is fontos, hogy cégük számára a legjobb helyszínt találják meg, akkor figyelmükbe ajánljuk ezt a fantasztikus ingatlant, amely ideális lehetőséget kínál üzleti célú hasznosításra. A környék kiváló adottságokkal rendelkezik, és a közlekedési lehetőségek is kiválóak.Bármilyen kérdésre szívesen válaszolok, keressen nyugodtan!Ez az ingatlan a “Felezőcsomag” megbízási portfólióhoz tartozik. A részletek az Otthon Centrum weboldalán olvashatja.Ez az ingatlan a \"Felező csomag\" megbízási portfólióhoz tartozik. Részletek az Otthon Centrum weboldalán.

 Hirdető adatai

Hirdető neve: Otthon Centrum
Kapcsolattartó: Varga György
Hirdető telefonszáma: +36 70 716 9666
Honlap: -