Pest megye, Százhalombatta


 

Ingatlan adatai

Irányár: 370 000 000 Ft
Típus: kereskedelmi/ipari ingatlan
Kategória: eladó
Alapterület: 650 m2
Fűtés: -
Állapota: -
Szobák száma: -
Építés éve: -
Szintek száma: -
Telekterület: -
Kert mérete: -
Erkély mérete: -
Felszereltség: -
Parkolás: -
Kilátás: -
Egyéb extrák:  
-

Részletes leírás

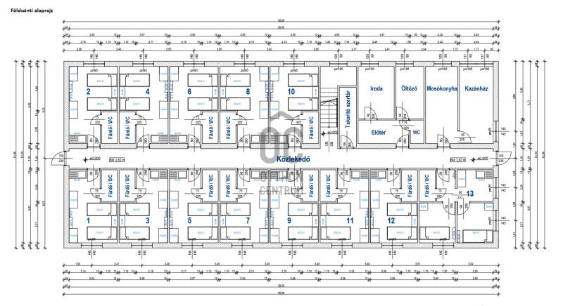
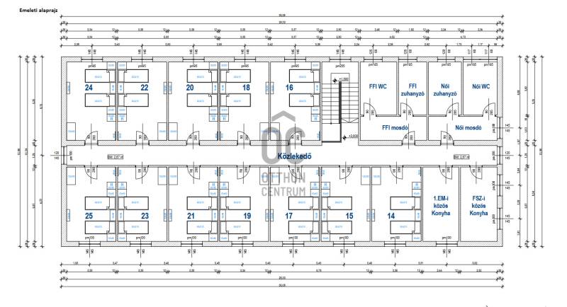
Befektetési célú ingatlanvásárlók figyelmébe ajánljuk ezt a kivételes lehetőséget, amely Százhalombatta ipari területén található.Díjmentes, bankfüggetlen hiteltanácsadással támogatjuk vevő ügyfeleinket a számukra legelőnyösebb finanszírozási döntések meghozatalában. Opcionálisan igénybe vehető kiegészítő szolgáltatásainkkal – mint ügyvédi közreműködés, energetikai tanúsítvány vagy villamos biztonsági felülvizsgálat – teljes körű szakmai támogatást nyújtunk az adásvétel folyamatának minden egyes lépésénél.

 Hirdető adatai

Hirdető neve: Otthon Centrum
Kapcsolattartó: Dán György
Hirdető telefonszáma: +36 70 469 3761
Honlap: -