Somogy megye, Balatonföldvár


 

Ingatlan adatai

Irányár: 57 500 000 Ft
Típus: lakás (tégla)
Kategória: eladó
Alapterület: 49 m2
Fűtés: gáz (konvektor)
Állapota: -
Szobák száma: 2
Építés éve: 1961
Szintek száma: -
Telekterület: -
Kert mérete: -
Erkély mérete: -
Felszereltség: -
Parkolás: -
Kilátás: kertre néző
Egyéb extrák:  
-

Részletes leírás

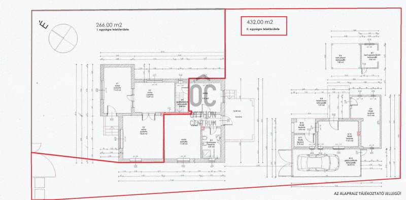
Balatonföldváron, a Keleti strandtól mindössze 1 km-re, csendes, átmenő forgalomtól mentes utcában kínálunk megvételre egy 2 lakásos családi házban kialakított, teljesen szeparált lakást, saját udvarrésszel és külön nyári lakrésszel.Az ingatlan ideális választás állandó lakhatásra, nyaralónak vagy befektetésnek is.FŐBB ADATOK:*Lakás: 49 m²*Nyári lakrész: 26 m²*Fedett terasz*Garázs: 20 m²*Fedett szaletli*Kerti tároló*Telek: 432 m² (leválasztott, kizárólagos használatú)AZ ÉPÜLET JELLEMZŐI:*2 lakásos családi ház, társasházzá alapítva*Teljesen elkülönített udvar, külön kertbejárattal*A közös fal hangszigeteléssel ellátott*Kétrétegű műanyag nyílászárók, szúnyoghálóval és redőnnyel*Födém kőzetgyapot szigeteléssel*Teljes közműellátottság*Külön közműórák*Melegvíz: villanybojler*Fűtés: gázkonvektor, hűtő-fűtő klíma, elektromos fűtőpanel*Ügyvéd által ellenjegyzett társasházi alapító okirat, használati megosztássalLAKÁS ELOSZTÁSA:*2 szoba*Konyha étkezővel*Közlekedő*Fürdőszoba WC-velNYÁRI LAKRÉSZ:*2 szoba*Fürdőszoba WC-vel*Fedett terasz + terasz*A nyári lakrészt korábban nyaraltatásra hasznosították, bejáratott vendégkörrel – kiváló befektetési lehetőség!GARÁZS*Egy autó és akár plusz egy motor is kényelmesen elférELHELYEZKEDÉS:*Keleti strand: 1 km*Bevásárlóközpont: 600 m*Vasútállomás: 1,7 kmÖSSZEGZÉS:*Saját udvar*Külön nyári lakrész – extra bevételi lehetőség*Csendes utca*Strand közelsége*Rendezett jogi háttérÉrdeklődj bizalommal, és tekintsd meg ezt a sokoldalúan hasznosítható balatonföldvári ingatlant!Ez az ingatlan a \"Felező csomag\" megbízási portfólióhoz tartozik. Részletek az Otthon Centrum weboldalán.

 Hirdető adatai

Hirdető neve: Otthon Centrum
Kapcsolattartó: Csizmadia-Schveiger Eszter
Hirdető telefonszáma: +36 70 388 6291
Honlap: -