Budapest, III.kerület


Testvérhegy - Farkastorok 

Ingatlan adatai

Irányár: 1 100 000 000 Ft
Típus: ház
Kategória: eladó
Alapterület: 1 150 m2
Fűtés: -
Állapota: új
Szobák száma: 16
Építés éve: -
Szintek száma: -
Telekterület: 2 400 m2
Kert mérete: 2 400 m2
Erkély mérete: 269 m2
Felszereltség: -
Parkolás: -
Kilátás: -
Egyéb extrák:  
-

Részletes leírás

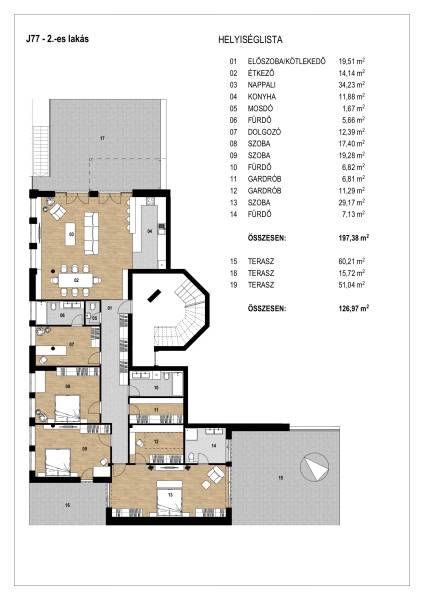
EXKLUZÍV VILLA A TESTVÉRHEGYENAjánljuk: Követségnek, cégközpontnak, magánvillának, többgenerációscsaládoknak.3.kerület, Testvérhegyen, kiváló közlekedésénél, mégis csendes helyen,igényes házak környezetében, EXKLUZÍV, 2023-ban épült, 3 szintes 1150m2-es Villa ház, 2400 m2-e telekkel, csodálatos, elvehetetlenpanorámával, hatalmas teraszokkal, szintenként óriási 80-100 m2-esnappalikkal, 13 szobával, 7 fürdőszobával, 6 autó részére teremgarázsbeállóval, rengeteg felszíni beállóval, 3 db tárolóval, pánikszobával eladó.Az ingatlan 2023-ban került átalakításra. Egy villaépületből bővítésselalakítottak ki 3 db nagyméretű lakást, 6 db fűtött lejáratú gépkocsibeállóta teremgarázsban, felszíni beállókat és 3db nagyméretű tárolót.A villa kevés átalakítással 1 lakásos épületként, irodaként is használható.Az épület teljesen új külsőt kapott, csak a tartószerkezetek maradtak meg.Teljeskörű átépítés történt, falak, tetőrendszer, szigetelések, vezetékek,fűtésrendszer, vízvezetékek , burkolatok, nyílászárók újak.lakások nettó négyzetméter: 1150 m2Teraszok összesen: 269,37 m2Helyiséglista:1.emelet• Nappali-konyha-étkező: 110,8 m2• szoba: 12,39 m2• szoba: 17,40 m2• szoba: 19, 28 m2• szoba: 11,29 m2• szoba: 29,17 m2• szoba: 11,23 m2• szoba: 10,73 m2• mosdó: 1,67 m2• fürdőszoba: 5,66 m2• fürdőszoba: 7,13 m2• gardrób: 11,29 m2• gardrób: 6,81 m2• fürdőszoba: 6,51 m2• közlekedő: 19,51 m2• közlekedő: 14,07 m2• lépcsőtér: 6,14 m2Földszint:• fölszint lépcsőtér: 6,14 m2• szoba/nappali 37,22• közlekedő: 15,9 m2• szoba: 11,23 m2• szoba: 10,73 m2• fürdő: 4,9 m2tetőtér helyiséglista:• előszoba: 12,73 m2• szoba: 15,38 m2• szoba: 18,41 m2• szoba: 19,67 m2• garderobe: 18,28 m2• vendégszoba : 13,1 m2• mosdó: 1,64 m2• háztartási helyiség: 4,09 m2• fürdőszoba: 10,65 m2• fürdőszoba: 11,01 m2• nappali-étkező-konyha: 78,75 m2• közlekedő: 6,66 m2• közlekedő: 4,2 m2• kamra: 4,32 m2Műszaki leírás:- 36 cm-es tégla falazat- 15 cm vastagságú grafitos, Drywith hőszigetelés- 3 rétegű, műanyag Hofstadter, hőszigetelt nyílászárókFűtéstechnika:- Daikin hőszivattyús fűtés- padlófűtés- fancoilSzaniterek:RavakÁrnyékolás:zsalúzia opcionálisKonyhabútor:- Nobília, német csúcsminőségű konyhabútor- Bosch gépekkel- konyhaszigetExtrák:- Chameleon okosotthon rendszer (mobiltelefonról irányítható)- dekorfal- igényes beltéri ajtók- nagyértékű, vízálló Vynil padlóburkolatA lakásokhoz tartozik:• a teremgarázsban 6 db gépkocsibeálló• felszíni beállók• 3db tároló: 17 m2Ár: 1,1 milliárd Ft.

 Hirdető adatai

Hirdető neve: Marianna Osztermayer
Kapcsolattartó: Dezső Dominika Szonja
Hirdető telefonszáma: +36308191867
Honlap: -