Budapest, XIII.kerület


 

Ingatlan adatai

Irányár: 148 000 000 Ft
Típus: lakás (tégla)
Kategória: eladó
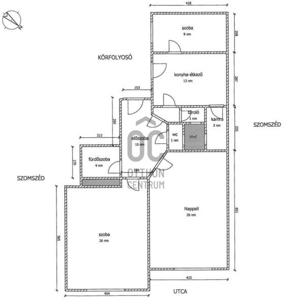
Alapterület: 92 m2
Fűtés: gáz (konvektor)
Állapota: -
Szobák száma: 3
Építés éve: 1914
Szintek száma: -
Telekterület: -
Kert mérete: -
Erkély mérete: -
Felszereltség: -
Parkolás: -
Kilátás: udvari
Egyéb extrák:  
-

Részletes leírás

A XIII. kerület egyik legkedveltebb részén, a hangulatos Pozsonyi úton kínálunk megvételre egy 92 m²-es, téglaépítésű lakást, mindössze 3 perc sétára a Margit hídtól.Az ingatlan a ház 4. emeletén helyezkedik el, két tágas és egy kisebb szobája kellemes életteret biztosít akár egy családnak, akár városi életet kedvelők számára. Állapota közepes, így új tulajdonosa saját ízlésére formálhatja, miközben megőrzi a lakás klasszikus, polgári hangulatát.A fűtésről gázkonvektorok és egy gázüzemű cserépkályha gondoskodik.A parkolás megoldott a belső udvarban vagy az utcán.A lakás különlegessége, hogy csendes, mégis mindenhez közel van: kávézók, üzletek, kiváló közlekedés és a Duna-part közelsége mind hozzájárulnak a környék kiemelkedő életminőségéhez.Ez az ingatlan ideális választás azok számára, akik elegáns városi otthont keresnek a XIII. kerület szívében, értékálló lokációban.Hívjon és nézzük meg együtt.

 Hirdető adatai

Hirdető neve: Otthon Centrum
Kapcsolattartó: Baji Andrea
Hirdető telefonszáma: +36 70 388 6306
Honlap: -