Zala megye, Cserszegtomaj


 

Ingatlan adatai

Irányár: 159 900 000 Ft
Típus: ház
Kategória: eladó
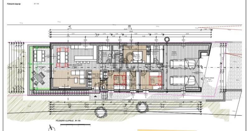
Alapterület: 174 m2
Fűtés: -
Állapota: új
Szobák száma: 4
Építés éve: 2025
Szintek száma: -
Telekterület: 1 473 m2
Kert mérete: 1 473 m2
Erkély mérete: 21 m2
Felszereltség: -
Parkolás: -
Kilátás: -
Egyéb extrák:  
-

Részletes leírás

Forgalomtól mentes csendes utcában, panorámás újépítésü prémium családi ház eladó!Kiemelt megbízás, csak irodánk kínálatában!--gyönyörű panoráma hévízre az erdőre hegygerincre--csendes forgalomtól mentes utca--amerikaikonyhás nappali,fedett terasz kapcsolattal--3 hálószoba, 2 fürdő-wc, + wc--gardrób ,mosókonyha--autók számára 2 állású garázs, 2 nyitott beálló--az otthon melegéről, hőszivattyús padlófütés gondoskodik--a hütés hőszivattyú fan coillal megoldott--az ingatlan 2025 év végére beköltözhető--tulajdonviszonyok rendezettek,Környezet: Cserszegtomaj a Balaton északnyugati partján, a Keszthelyi-hegység délnyugati lábánál helyezkedik el. A Hévíztől 3 km-re, Keszthelytől 4 km-re fekvő település Közép-Európa legnagyobb területű faluja. A csendes, nyugodt környezet kiválóan alkalmas családok, pihenni vágyók számára. Kiváló lehetőséget nyújt a kerékpározás, túrázás, kirándulás, lovaglás szerelmeseinek. A Balaton, Keszthely és Hévíz közelsége is sok vendéget csábít, de saját nevezetességei is méltán teszik népszerűvé. Sok érdeklődőt vonzzanak az országos hírű arborétum, Csókakő, a 32 m magas Margit-kilátó, a 3 km hosszan feltárt Kútbarlang és a csodálatos Várszínház.A Nyugat-Balatoni régióban található gyógyfürdők: Hévíz, Kehidakustány és Zalakaros.Ízelítőképpen még néhány környékbeli kiránduló hely: Rezi: várrom, Sümeg: vár, Balatonederics: Afrika Múzeum, Kis-Balaton, Balatonszentgyörgy: Csillagvár, Gyulakeszi: Csobánc Vár, Fenékpuszta: Diás-sziget, Matula-kunyhó, Salföld: Természetvédelmi major, Tapolca: Tavasbarlang, Malom-tó…Komoly érdeklődés esetén kérem hívjon vagy írjon.

 Hirdető adatai

Hirdető neve: Otthon Centrum
Kapcsolattartó: Pálfi Szabolcs
Hirdető telefonszáma: +36 70 461 9086
Honlap: -