Nógrád megye, Karancsalja


 

Ingatlan adatai

Irányár: 78 000 000 Ft
Típus: ház
Kategória: eladó
Alapterület: 152 m2
Fűtés: -
Állapota: felújított
Szobák száma: 5
Építés éve: -
Szintek száma: -
Telekterület: 10 250 m2
Kert mérete: 10 250 m2
Erkély mérete: 30 m2
Felszereltség: -
Parkolás: -
Kilátás: -
Egyéb extrák:  
-

Részletes leírás

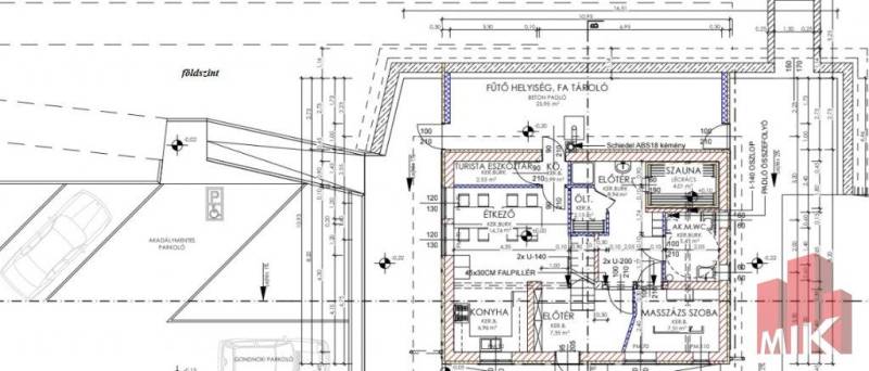
Karancsalja csendes, természetközeli környezetében kínálunk megvételre egy jelenleg is működő, egész évben üzemeltethető vendégházat, amely nemcsak kiváló turisztikai befektetés, hanem akár tágas, többgenerációs családi otthonként is ideális választás lehet. Az ingatlan egy 10 000 m²-es, erdővel körülvett, teljes egészében körbekerített területen helyezkedik el, amely nyugalmat, intimitást és biztonságot kínál.A vendégház háromszintes kialakítású: földszinti, tetőtéri és beépített padlástéri résszel rendelkezik, mindhárom szint vendégek fogadására, elszállásolására alkalmas. Az épületben összesen 4 szoba található, mindegyikhez saját fürdőszoba tartozik, a teljes kapacitás 13 fő elszállásolására alkalmas. Emellett rendelkezésre áll olyan szoba és mellékhelyiség is, amely akadálymentes kialakítású, így a mozgáskorlátozott vendégek számára is biztosított a kényelmes használat. A kialakítás kényelmes, jól elkülönülő életteret biztosít, így az ingatlan egyszerre szolgálhat vállalkozási és lakhatási célokat, de akár teljes egészében magánhasználatra is ideális.Az elmúlt 10 év során az épület teljes körű, alapoktól történő felújításon esett át: megtörtént a villamoshálózat teljes cseréje, a víz- és csatornarendszer megújítása, valamint a gépészeti korszerűsítés és a belső terek modernizálása. A műszaki háttér stabil és megbízható, így az új tulajdonos számára nem felújítandó projektet, hanem azonnal használatba vehető, korszerű állapotú ingatlant jelent.A komfortérzetet szauna is növeli, amely mind lakhatási, mind turisztikai szempontból komoly hozzáadott értéket képvisel. A tágas telek számos további lehetőséget rejt magában: bővíthető a szálláskapacitás, kialakítható wellness-részleg, rendezvénytér, vagy akár egy új turisztikai koncepció is megvalósítható. Ugyanakkor azok számára is ideális választás, akik egyszerűen csak nagy területen, természetközeli, nyugodt környezetben szeretnének élni.A Karancs-hegység közelsége, a kiránduló- és túraútvonalak, valamint a környék természeti adottságai egész évben vonzóvá teszik a területet. Az ingatlan így egyaránt kiváló lehetőség befektetők, szálláshely-üzemeltetők, illetve a nyugodt, tágas élettérre vágyó családok számára, miközben a mozgáskorlátozott vendégek részére is biztosított az akadálymentes használat lehetősége.Amennyiben befektetésként tekint rá:Az ingatlan mellett átadásra kerül a weboldal, social media fiókok, online marketingtámogatás, és a már meglévő foglalásokkal az ügyfélkör is, amelynek 30%-a visszajáró törzsvendég. Jelenleg, 2026-ban már most (február17.) 48 nap foglalásnál tartunk!Az ingatlan kiemelkedő ár-érték aránnyal rendelkezik, teljes körűen felújított állapota és stabil műszaki háttér miatt azonnal üzemeltethető. A vendégház télen-nyáron, egész évben működtethető, ami rendkívül vonzóvá teszi befektetők és szálláshely-üzemeltetők számára is.Bővebb felvilágosításért, megtérülési kalkulációkért, vagy már megtekintési szándék esetén keressen bizalommal!MIK azonosító: 3971859

 Hirdető adatai

Hirdető neve: MIK Magyar Ingatlan Központ
Kapcsolattartó: Dancsák Róbertné Krisztina
Hirdető telefonszáma: +36-70-5504771
Honlap: -