Budapest, VII.kerület


 

Ingatlan adatai

Irányár: 42 900 000 Ft
Típus: lakás (tégla)
Kategória: eladó
Alapterület: 20 m2
Fűtés: elektromos
Állapota: -
Szobák száma: 1
Építés éve: -
Szintek száma: -
Telekterület: -
Kert mérete: -
Erkély mérete: -
Felszereltség: -
Parkolás: -
Kilátás: udvari
Egyéb extrák:  
-

Részletes leírás

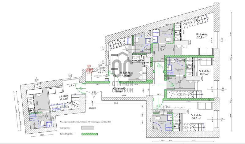
Budapest VII. kerületében, Belső_Erzsébetvárosban a Zsinagóga közvetlen közelében, rendezett házban eladó egy 2. emeleti 96 m2-es lakás, melyet ót önálló lakássá osztottak. Jelen hirdetés tárgya az 2-es számú, 20 m2-es egység 8 m2-es galériával.Az utolsó simítások vannak csak hátra a teljes körű felújításból, aminek köszönhetően szó szerint mindent kicserélnek, csak a határoló- és teherhordó falak maradnak.A beruházó sokadik hasonló projektje az itteni, a közelben számos referenciát tudok mutatni.A lakások magas műszaki tartalommal, modern, fiatalos dizájnnal kerülnek átadásra. Az ár részét képezik a hűtő-fűtő klímák, a konyhabútor beépített gépészettel (főzőlap, sütő, mikró, elszívó), az összes lámpatest és rejtett hangulatvilágítás.Az ingatlant saját részre és befektetőknek is ajánlom, hiszen tömegközlekedéssel nagyjából minden elérhető negyed órán belül, fenntartása nagyon kedvező, így könnyen kiadható.Az ingatlanhoz ügyvédi használati megosztás készült, az ügyvédi költséget az eladó vállalja.Jelen projekt lakásai:1-es: 16,3 m2-es, 1 szobás + galériás (5,5 m2), udvari nézet, ELADVA!2-es: 20 m2-es, 1 szobás + galériás (8 m2), udvari nézet, 42,9 mFt3-as: 23 m2-es, 1 szobás + galériás, utcai nézet, ELADVA!4-es: 19 m2-es, 1 szobás + galériás (8 m2), utcai nézet, 45,9 mFt5-ös: 18 m2-es, 1 szobás + galériás (6 m2), utcai nézet, 45,9 mFtFIGYELEM! A jelenlegi képek látványtervek, friss, aktuális képek hamarosan!A belmagasság 340 cm, így a galéria hasznos belmagassága kb. 130 cm lesz.A közös költség nagyon kedvező, mindössze 330 Ft / m2.1/1 tulajdonos, per-, teher- és igénymentes, azonnal költözhető.Egyedi igényekre szabott lakás- és/vagy vállalkozói hitelekkel állunk rendelkezésére. Bankfüggetlen hitelcentrumunk az országban elérhető összes bank és hitelintézet ajánlatát versenyezteti az Ön számára díjmentesen. Munkatársaink nagy szakmai tapasztalattal várják Önt az előre egyeztetett időpontban akár a normál munkaidő után is.Bővebb információért és a megtekintéssel kapcsolatban hívjon bizalommal akár hétvégén is!

 Hirdető adatai

Hirdető neve: Otthon Centrum
Kapcsolattartó: Stark Péter
Hirdető telefonszáma: +36 70 461 9256
Honlap: -