Budapest, XIII.kerület


 

Ingatlan adatai

Irányár: 100 050 000 Ft
Típus: lakás (újépítésű)
Kategória: eladó
Alapterület: 69 m2
Fűtés: -
Állapota: új
Szobák száma: 2+1
Építés éve: 2027
Szintek száma: 2
Telekterület: -
Kert mérete: -
Erkély mérete: 2 m2
Felszereltség: -
Parkolás: -
Kilátás: utcai
Egyéb extrák:  
-

Részletes leírás

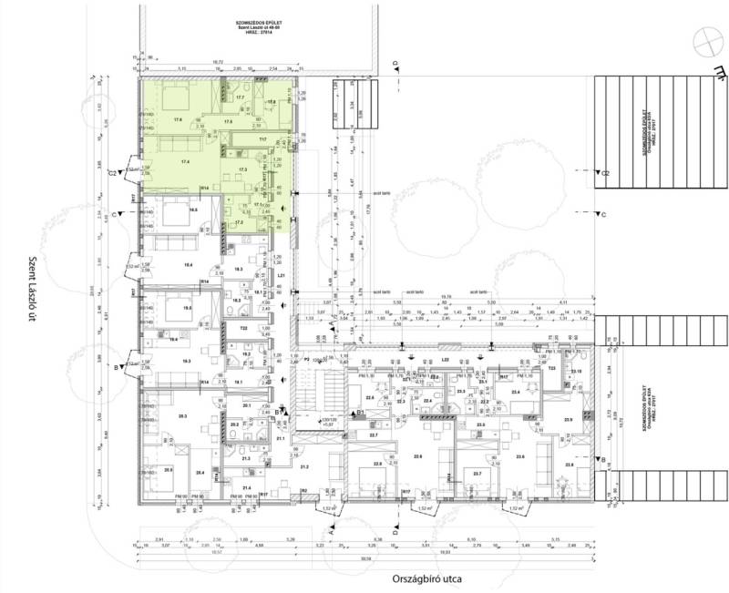
ÚJ ÉPÍTÉSŰ INGATLANOK 2027 KÖLTÖZÉSSEL! Angyalföld:Angyalföld Budapest XIII. kerületének legnagyobb városrésze, amely az egykori ipari zónából mára modern lakó- és irodanegyeddé alakult át. Hagyományos ipari zónák helyén ma már irodaházak, kereskedelmi egységek és a Duna-parton luxuslakások találhatók.Az épület tettérbeépítése során törekedtünk olyan lakások kialakítására, ami a mai lakásigényeknek felel meg, mint amerikai konyhás nappali és külön hálószoba. Változatos lakásokat alakítottunk ki úgy méretükben, mint elrendezésükben.17 lakás.Előszoba: 2.35 nm.Fürdőszoba: 5.49 nm.Konyha+ étkező: 10,01 nm.Nappali: 21.48 nm.Közlekedő: 4.39 nm.Hálószoba: 17.08 nm.Fürdőszoba: 4.05 nm.Halószoba: 8.53 nm.Erkély: 1.52 nm.Fizetés: készültségi fokozathoz kötött fizetési ütemezés.A további kérdésekkel és a megtekintéssel kapcsolatban, kérem keressen a megadott mobil számon.

 Hirdető adatai

Hirdető neve: GDN Ingatlanhálózat
Kapcsolattartó: Tőkés Levente
Hirdető telefonszáma: +36-30-362-4723
Honlap: -