Heves megye, Hatvan


 

Ingatlan adatai

Irányár: 32 000 000 Ft
Típus: lakás (panel)
Kategória: eladó
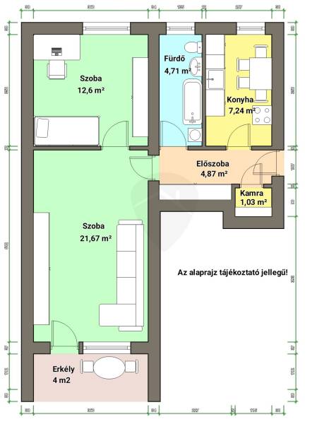
Alapterület: 55 m2
Fűtés: gáz (konvektor)
Állapota: -
Szobák száma: 2
Építés éve: 1970
Szintek száma: -
Telekterület: -
Kert mérete: -
Erkély mérete: 4 m2
Felszereltség: -
Parkolás: -
Kilátás: utcai
Egyéb extrák:  
-

Részletes leírás

Fedezd fel ezt a remek lehetőséget Hatvan központi részén, ahol egy 55 négyzetméteres, 2 szobás panel lakás vár rád! Ez az ingatlan ideális választás, ha egy világos, barátságos otthonra vágysz, amelyben a mindennapok kényelmét élvezheted. Az ingatlan közepes állapotú, így lehetőséged van saját ízlésed szerint alakítani, és az erkélye, amely 4 négyzetméter, tökéletes helyszín a reggeli kávézásokhoz vagy a pihenéshez. A gázkonvektoros fűtés biztosítja a meleg otthont a hideg téli hónapokban is. A konyhában, fürdőszobában és a hálószobában már műanyag nyílászárók lettek beépítve, a nappaliban található ablak és teraszajtó vár cserére. A villany- és vízhálózat eredeti állapotú. Közös költség 13.500 Ft.A Pázsit utcában található lakás, a környék ellátottsága kiváló. A közeli boltok, éttermek és szolgáltatások mindössze pár percnyi sétára találhatóak, így minden szükséges dolog kéznél van.Közlekedés szempontjából is kedvező a helyzet, hiszen autóval és tömegközlekedéssel egyaránt könnyen megközelíthető. A közelben található buszmegállók révén a város többi része is gyorsan elérhető, így a napi ingázás sem jelenthet problémát. Budapest 1 órán belül szintén elérhető. Az utcán történő parkolás is megoldott, így a gépjárműved mindig kéznél lehet.Ne habozz, ha felkeltette az érdeklődésedet ez a remek lakás! Kérlek, keress bátran, ha további kérdéseid lennének, vagy szeretnéd megtekinteni az ingatlant!

 Hirdető adatai

Hirdető neve: Ingatlanmentor powered by Rock Home
Kapcsolattartó: Horváth Tibor
Hirdető telefonszáma: +36 70 467 6871
Honlap: -