Pest megye, Dunakeszi


Dunakeszi 

Ingatlan adatai

Irányár: 65 900 000 Ft
Típus: lakás (panel)
Kategória: eladó
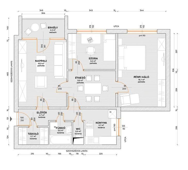
Alapterület: 71 m2
Fűtés: távfűtés
Állapota: -
Szobák száma: 2+1
Építés éve: -
Szintek száma: -
Telekterület: -
Kert mérete: -
Erkély mérete: -
Felszereltség: -
Parkolás: -
Kilátás: utcai
Egyéb extrák:  
-

Részletes leírás

Dunakeszin kínálunk eladásra egy 71 m²-es, erkélyes, 2+1 félszobás, világos és jó elosztású lakást.Az ingatlan normál állapotú, beköltözhető, de ugyanakkor igény szerint esztétikai, illetve kisebb korszerűsítési munkálatokkal tovább növelhető értéke és komfortja. A külön nyíló szobák laminált padlóval burkoltak, redőnnyel felszereltek, illetve a lakásban az erkély ajtót leszámítva teljeskörű nyílászáró csere történt. A nappaliból egy 4 m²-es erkélyre léphetünk ki, ahonnan parkos, zöld környezetre nyílik kilátás, ami kellemes, nyugodt hangulatot biztosít.A fűtést a dunakeszi hőközpont biztosítja, melynek köszönhetően, kellemes komfortérzetet nyújt a lakás, alacsony fenntartási költségek mellett.Elhelyezkedése kiemelkedően jó: központi, mégis csendes, zöldövezeti környezetben található. A lokációnak köszönhetően minden fontos intézmény, bevásárlási lehetőség, iskola, óvoda, tömegközlekedés néhány percen belül elérhető, a Duna-parti sétány pedig rövid sétával megközelíthető. Amennyiben a vásárláshoz meglévő ingatlana eladása vagy hitelügyintézés szükséges, irodánk teljes körű segítséget nyújt a gördülékeny és biztonságos ügyintézés érdekében. A hitel közvetítése díjmentes.Amennyiben elnyerte tetszését, vagy bármilyen kérdése lenne, illetve megtekintési szándéka, keresse bizalommal irodánkat.

 Hirdető adatai

Hirdető neve: MPD Hungary Kft.
Kapcsolattartó: Casa Futura Kft.
Hirdető telefonszáma: +36703990399
Honlap: -