Pest megye, Veresegyház


 

Ingatlan adatai

Irányár: 131 900 000 Ft
Típus: ház
Kategória: eladó
Alapterület: 131 m2
Fűtés: gáz (cirko)
Állapota: -
Szobák száma: 2+2
Építés éve: 2006
Szintek száma: -
Telekterület: 284 m2
Kert mérete: 284 m2
Erkély mérete: 23 m2
Felszereltség: -
Parkolás: -
Kilátás: udvari
Egyéb extrák:  
-

Részletes leírás

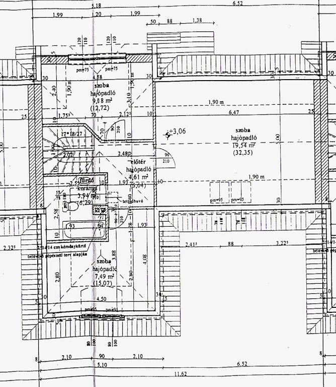
ELADÓ 131 NM-ES, BELSŐ KÉTSZINTES SORHÁZ SAJÁT KERTTEL ÉS GARÁZZSAL VERESEGYHÁZ KEDVELT, KERTVÁROSI RÉSZÉN!DÉLKELETI FEKVÉS, PADLÓFŰTÉS, TERASZ, KIVÁLÓ KÖZLEKEDÉS – VONAT 5-8 PERC SÉTÁRA, BUDAPEST GYORSAN ELÉRHETŐ! CSENDES KÖRNYEZET, IDEÁLIS CSALÁDI OTTHON!Megvételre kínálok, Pest megyei Veresegyházon, délkeleti fekvésű, nettó 131 nm-es, bruttó 170 nm-es, belső kétszintes, önálló helyrajzi számmal, 2 + 2 félszobás, jó állapotú, saját garázzsal, és 284 nm-es önálló telekkel rendelkező sorházat. Az épület 2006-ban épült, beton alapra, 38 cm-es Phorotherm téglából, 7 cm dryvit szigeteléssel, beton födémmel, betoncserép fedéssel. Épület körbe műanyag thermo nyílászárókat kapott, elektromos redőnnyel és rovarhálóval ellátva. Fűtésről és melegviz ellátásról gázkazán gondoskodik, mindkét szinten padlófűtéssel. A felsőszintre vezető lépcső, korlátja és fa burkolata az ingatlan tartozéka, rendelkezésre is áll, csak ha az új tulajdonosnak, kell megcsináltatnia. Környezete tiszta rendezett, szomszédok barátságosak kedvesek.​Közlekedés: ​Az ingatlan egyik legnagyobb előnye az elhelyezkedése a tömegközlekedés szempontjából:​Vasút:Az Ivacs megállóhely sétatávolságra (kb. 5-8 perc) található. Innen a Budapest–Vácrátót–Vác vonalon közvetlen vonatok indulnak a Nyugati pályaudvarra (kb. 45-50 perc menetidő).​Helyi busz: A veresegyházi helyi járatok segítik a központ és a többi városrész elérését.​Autó: Budapest az M3-as autópályán vagy az M2-es úton keresztül is viszonylag gyorsan (forgalomtól függően 30-40 perc) megközelíthető.​Ellátottság és Környezet:​Bevásárlás: A közelben kisebb élelmiszerboltok találhatók, de a városközpontban lévő nagy áruházak (Lidl, SPAR) is 5-10 perces autóúttal elérhetőek.​Oktatás/Egészségügy: Veresegyház híres a jó iskoláiról (pl. Fabriczius József Általános Iskola) és a modern Misszió Egészségügyi Központról, melyek a város belsőbb részén találhatók.​Szabadidő: A közelben vannak az Ivacsi-tavak, ami remek kikapcsolódási lehetőség, és nincs messze a híres Veresegyházi Medveotthon sem.INGYENES hitel tanácsadás! CSOK Ügy intézés!BANKFÜGGETLEN hitelcentrumunk minden elérhető bank és hitelintézet ajánlatát versenyezteti az Ön kedvéért, ráadásul DÍJMENTESEN.Önnek nincs más dolga, mint elbeszélgetni munkatársunkkal, aki a hallott információk alapján versenyre hívja a bankokat, hogy Ön hosszú távon is a legjobb konstrukciót kaphassa. A legjobb ajánlatokból végül Ön választhatja ki a nyertest.Munkatársaink sokéves szakmai tapasztalattal várják Önt, előre egyeztetve akár a normál munkaidő után is.Amennyiben hirdetésem felkeltette érdeklődését, várom hívását, akár hétvégén is! V.I.

 Hirdető adatai

Hirdető neve: GDN Ingatlanhálózat
Kapcsolattartó: Varga István
Hirdető telefonszáma: +36-20-979-7761
Honlap: -