Somogy megye, Siófok


 

Ingatlan adatai

Irányár: 180 000 000 Ft
Típus: lakás (újépítésű)
Kategória: eladó
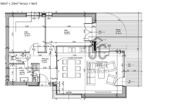
Alapterület: 66 m2
Fűtés: -
Állapota: új
Szobák száma: 3
Építés éve: 2026
Szintek száma: -
Telekterület: -
Kert mérete: -
Erkély mérete: 24 m2
Felszereltség: -
Parkolás: -
Kilátás: kertre néző
Egyéb extrák:  
-

Részletes leírás

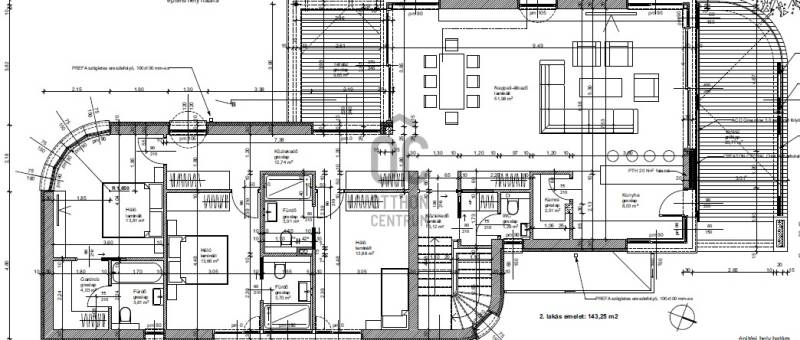
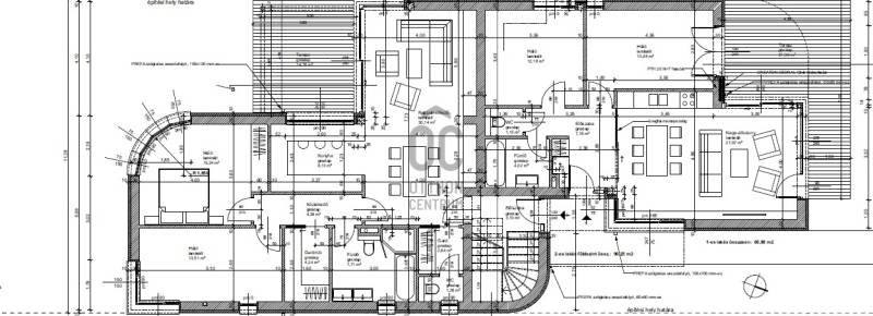
Exkluzív lehetőség Siófok Aranypartján – mindössze háromlakásos boutique projektben.A Balatontól csupán egy háztömbnyire, az Aranypart egyik legkeresettebb utcájában kínáljuk ezt a 66 m²-es földszinti, kertkapcsolatos lakást, amelyhez 24 m²-es terasz, privát, utcafronti saját kert, valamint egy felszíni gépkocsi-beálló is az árban.Letisztult elegancia, valódi balatoni életérzésA modern, Bauhaus ihletésű, háromlakásos épület intim és nyugodt lakókörnyezetet biztosít. A telken található idősebb fenyőfák természetközeli hangulatot teremtenek, miközben a Balaton közelsége és a környék kiváló infrastruktúrája egész évben értékálló választássá teszi az ingatlant.A lakás külön bejárattal rendelkezik, így valódi privát életteret kínál – ideális állandó otthonnak, exkluzív nyaralónak vagy prémium befektetésnek.Kültéri élettér kompromisszumok nélkülA 24 m²-es, pergolával fedett terasz a nappali természetes meghosszabbítása, amely tavasztól őszig tökéletes helyszíne a pihenésnek vagy baráti összejöveteleknek.A hozzá tartozó saját kert meghitt, zöld környezetet biztosít, ahol a balatoni nyugalom valóban átélhető.Prémium műszaki tartalomHőszivattyús fűtés padlófűtésselHőszivattyús hűtés oldalfali fan-coil rendszerrelHelyiségenként szabályozható komfortModern, vakolt homlokzat egyedi CEDRAL burkolati elemekkelTelken belüli felszíni beálló az árbanMiért különleges ez az ingatlan?Limitált, mindössze 3 lakásos projektKiváló tájolás, jól használható életterekBalaton-közeli elhelyezkedésSaját kert + nagy teraszFelszíni beálló az ár részét képeziEz a lakás a Balaton-parti ingatlanpiac ritka kategóriáját képviseli: diszkrét elegancia, kis lakásszám adta exkluzivitás és valódi életminőség egy helyen.Siófok Aranypart – ahol az értékálló befektetés találkozik a prémium életstílussal.Részletes műszaki tartalommal és személyes bemutatóval kapcsolatban keressen bizalommal!Projekt bemutatásaPRÉMIUM, 3 LAKÁSOS ÚJ ÉPÍTÉSŰ PROJEKT SIÓFOK ARANYPARTJÁN – KARNYÚJTÁSNYIRA A BALATONTÓLSiófok egyik legkeresettebb részén, az Aranypart szívében, kínálunk egy exkluzív, mindössze háromlakásos, modern megjelenésű lakóépületet, ahol a nyugalom, a privát élettér és a balatoni életérzés tökéletes egyensúlyban találkozik.A kiváló adottságú telek mindössze egy háztömbnyire helyezkedik el a Balatontól, ahonnan az épületek között a vízfelület is megcsillan. A telken található nagyméretű, idősebb fenyőfák különleges hangulatot és természetközeli környezetet biztosítanak, miközben a környék infrastruktúrája és a strand közelsége egész évben értéket képvisel.A projekt főbb jellemzői:mindössze 3 lakás – intim, nyugodt lakókörnyezetmodern, Bauhaus ihletésű építészeti megjelenésnagy teraszok, privát kertekkiváló tájolás és jól használható életterektelken belüli gépkocsi-beállókprémium műszaki tartalomLakások elosztása:66 m²-es földszinti lakás + 24 m² terasz + saját kert (utcafront felé)90 m²-es földszinti lakás + 14 m² terasz + privát kert (csendes hátsó kert felé)143 m²-es emeleti penthouse lakás + 30 m² terasz, teljes emeleti szinttelA földszinti lakások külön bejárattal rendelkeznek, hasonló méretű, privát kertekkel kialakítva, így ideális választást jelentenek akár állandó otthonnak, akár nyaralónak vagy befektetésnek.Az épület letisztult, vakolt homlokzatát modern CEDRAL burkolati elemek teszik egyedivé. A teraszok nyitható pergolával készülnek, így minden évszakban élvezhető kültéri életteret biztosítanak.Modern gépészet:hőszivattyús fűtés padlófűtésselhőszivattyús hűtés oldalfali fan-coil rendszerrelhelyiségenként szabályozható komfortEz a projekt ideális azok számára, akik a Balaton közelségét, a modern építészetet és a kis lakásszám adta exkluzivitást keresik — kompromisszumok nélkül.Ez a projekt a Balaton-parti ingatlanpiac ritka kategóriáját képviseli.Prémium elhelyezkedés. Diszkrét elegancia. Valódi balatoni életminőség.Siófok Aranypart – ahol az értékálló befektetés találkozik az életminőséggel.Érdeklődés és részletes műszaki tartalom: keressen bizalommal!

 Hirdető adatai

Hirdető neve: Otthon Centrum
Kapcsolattartó: Horváthné Virág Tímea
Hirdető telefonszáma: +36 70 469 3981
Honlap: -