Budapest, II.kerület


 

Ingatlan adatai

Irányár: 399 000 000 Ft
Típus: ház
Kategória: eladó
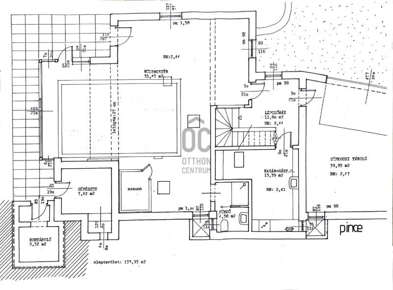
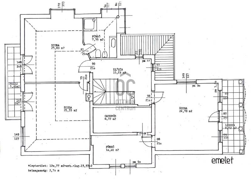
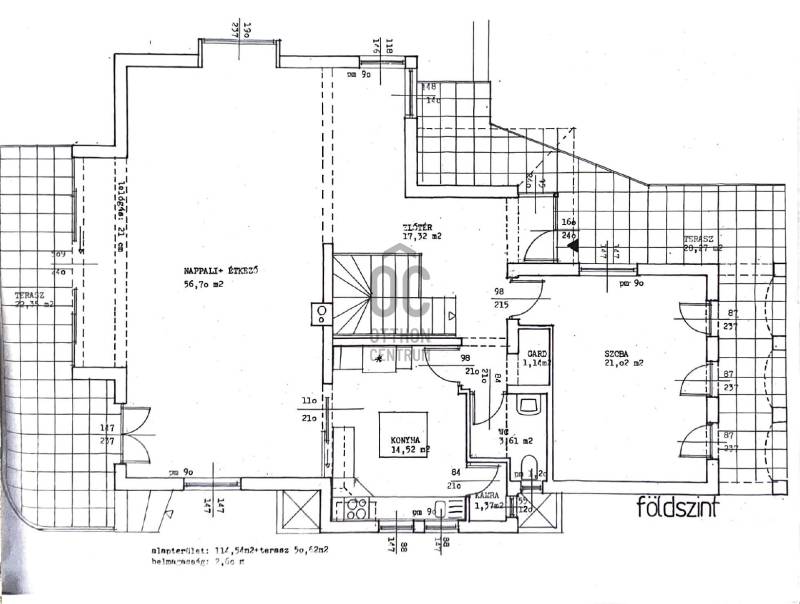
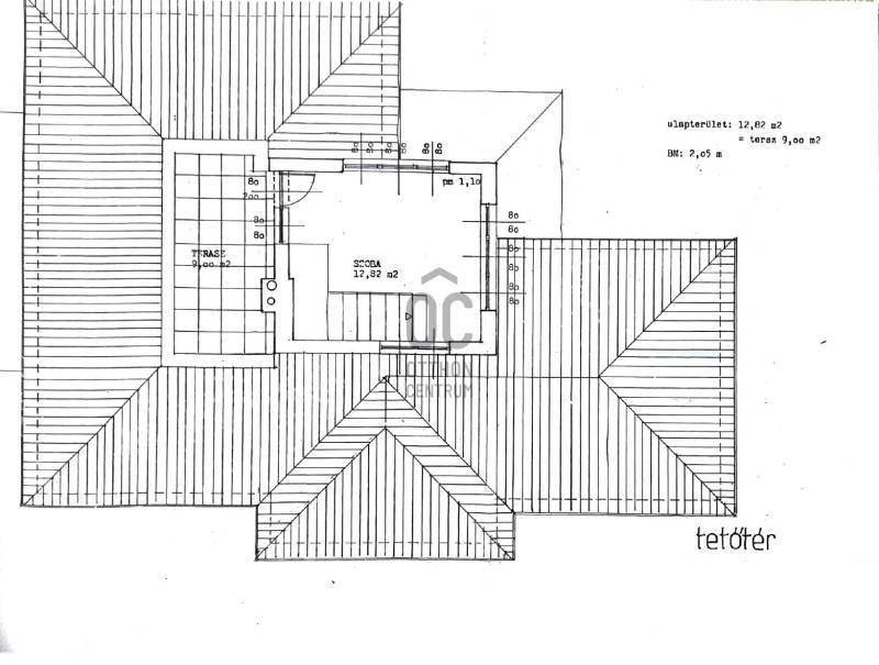
Alapterület: 338 m2
Fűtés: gáz (cirko)
Állapota: -
Szobák száma: 6
Építés éve: 2006
Szintek száma: -
Telekterület: 997 m2
Kert mérete: 997 m2
Erkély mérete: -
Felszereltség: -
Parkolás: -
Kilátás: -
Egyéb extrák:  
-

Részletes leírás

Képzelje el, hogy minden reggel egy ANDALÚZ VILLÁBAN ébred – madárcsicsergés, napsütés, FRISS KÁVÉ vagy egy pohár HŰVŐS CAVA a saját MEDITERRÁN TERASZÁN. Most ez az álom valóra válhat.Ez a nettó 340 m²-es, bruttó 400 m²-es, 6 SZOBÁS VILLA egy közel 1000 m²-es, parkosított telken található, a Hűvösvölgy közelségében, egy exkluzív, csendes környéken.A mediterrán romantika minden részletében tetten érhető: ÁRKÁDOS TERASZOK, rusztikus kőburkolatok, TERMÉSZETES FA, MELEG SZÍNEK, és GAZDAG NÖVÉNYVILÁG. A kertben KERTI TÓ, mediterrán növények, valamint egy KÜLÖNÁLLÓ, FEDETT TERASZ is helyet kapott – ideális helyszín családi és baráti összejövetelekhez.A ház felszereltsége sem hagy kívánnivalót maga után:Fűtött beltéri medence,Szauna,Borospince,Dupla garázs,Impozáns panoráma a környező hegyekre.Ez a ház nem csupán lakóhely – életstílus. Egy szelet Spanyolország a budai dombok között.Álmai otthona egy karnyújtásnyira van.

 Hirdető adatai

Hirdető neve: Otthon Centrum
Kapcsolattartó: Máj-Csitári Viktória Zsuzsanna
Hirdető telefonszáma: +36 70 388 5971
Honlap: -