Budapest, I.kerület


 

Ingatlan adatai

Irányár: 154 900 000 Ft
Típus: lakás (tégla)
Kategória: eladó
Alapterület: 99 m2
Fűtés: gáz (cirko)
Állapota: új
Szobák száma: 3
Építés éve: 1935
Szintek száma: 3
Telekterület: -
Kert mérete: -
Erkély mérete: 4 m2
Felszereltség: -
Parkolás: -
Kilátás: utcai
Egyéb extrák:  
-

Részletes leírás

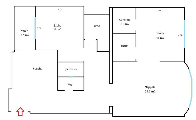
Eladó az I. kerületben, Márvány utcában egy 99 m²-es, 3. emeleti, erkélyes, rendkívül világos és kivételesen igényesen felújított lakás. A teljes körű felújítás 3 éve történt, amely során a lakás minden eleme megújult, így a leendő tulajdonos egy modern, magas műszaki és esztétikai színvonalú otthonba költözhet.A tágas elrendezésű ingatlan három szobából, két elegáns fürdőszobából, valamint egy kényelmes gardróbszobából áll. A fűtést kombicirkó biztosítja, padlófűtéssel kiegészítve, a nyílászárók újak, a lakás minden helyisége kiváló állapotú.A rendezett, liftes társasház jó lakóközösséggel rendelkezik, a környék pedig minden szempontból ideális: kulturális intézmények, parkok, üzletek és tömegközlekedés néhány percen belül elérhetőek.

 Hirdető adatai

Hirdető neve: GDN Ingatlanhálózat
Kapcsolattartó: Nádaski Szabina
Hirdető telefonszáma: +36-30-617-4042
Honlap: -