Bács-Kiskun megye, Baja


 

Ingatlan adatai

Irányár: 29 000 000 Ft
Típus: ház
Kategória: eladó
Alapterület: 90 m2
Fűtés: -
Állapota: felújítást igényel
Szobák száma: 2+1
Építés éve: 1975
Szintek száma: -
Telekterület: 600 m2
Kert mérete: 600 m2
Erkély mérete: 30 m2
Felszereltség: -
Parkolás: -
Kilátás: utcai
Egyéb extrák:  
-

Részletes leírás

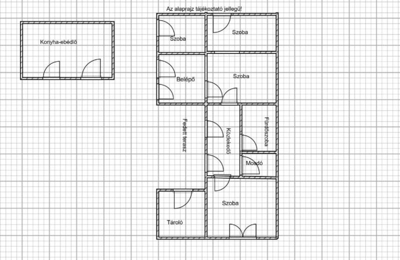
Eladó 90 nm-es családi ház Baján – Homokváros, Róka utcaBaja közkedvelt, nyugodt homokvárosi részén, a Róka utcában kínálunk megvételre egy vegyes falazatú családi házat, amely kiváló választás lehet fiatal pároknak, kisgyermekes családoknak vagy akár idősebb korosztálynak is.✨ Az ingatlan jellemzői:-2 külön nyíló szoba-tágas nappali-fürdőszoba + külön mosdó-közlekedő-különálló konyhaNagy terasz – tökéletes helyszín reggeli kávézáshoz vagy esti beszélgetésekhezGépkocsi beállóKis, zárt udvar – könnyen karbantartható, mégis hangulatos Elhelyezkedés:Csendes, barátságos környék, mégis minden könnyen elérhető: bolt, óvoda, iskola és buszmegálló a közelben. A városközpont mindössze kb. 20 perc sétára található.Ez az otthon ideális lehet azok számára, akik nyugodt környezetben szeretnének élni, de fontos számukra a jó elhelyezkedés is.Irányár: 29.000.000 Ft További információért és megtekintésért keressen bizalommal!

 Hirdető adatai

Hirdető neve: GDN Ingatlanhálózat
Kapcsolattartó: Farkasné Kasza Brigitta
Hirdető telefonszáma: +36-20-326-3059
Honlap: -